CKS潮牌买手店,探索“未知”的乐趣
在钢筋混凝土的城市森林之中我们犹如一个个挣扎求生的动物,每一次科技的革命,每一次潮流的迭代,我们仿佛一直在追赶着时代的脚步却始终追不上。买手店与品牌店、商场店不同的地方在于,你走进去之前里面的一切都是未知的,未知的品牌、未知的产品、未知的体验——如同一个未经勘探过的宝藏星,正是这些未知在不断刺激着追赶潮流的人们从麻木的生活中去探索美的乐趣。

▲ 建筑原貌

▲ 拆除后的空间回归到了钢筋混凝土的原始状态




▲ 推导图

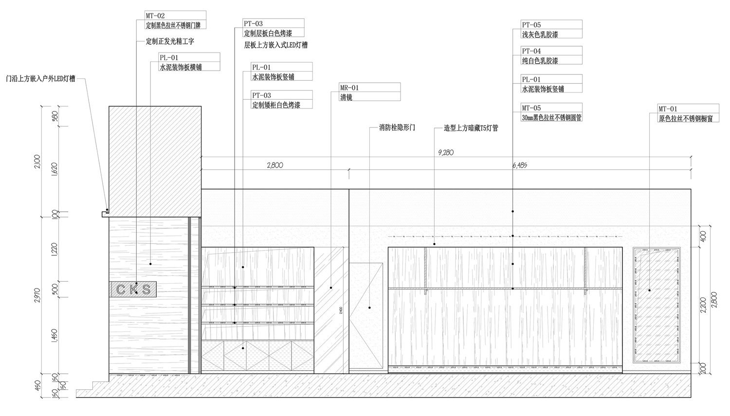
▲ 外立面

斜10°的门头保留水泥板的自然面,锐梵团队在设计过程中也在不断思索,奢华精致的美与原始粗旷的美究竟哪一个才是真实的自然状态



金属与水泥搭配的空间作为背景,每一套穿搭,每一个产品都展示着自己在最真实的城市生活中的魅力


墙面的水泥板与蜂窝铝板同时诠释着都市的钢铁森林与CKS未知星球的双重意义


橙黄色与深蓝色的亚克力象征着我们都市生活中时常在不经意间出现的温暖和偶尔感受到的忧郁



相比于一层的粗旷,负一层放佛我们城市生活的另一面,更多的秩序与精致体现在这里

▲ 更衣室

▲ 洗手间



▲ 局部细节

▲ 材料样板




▲ 立面图

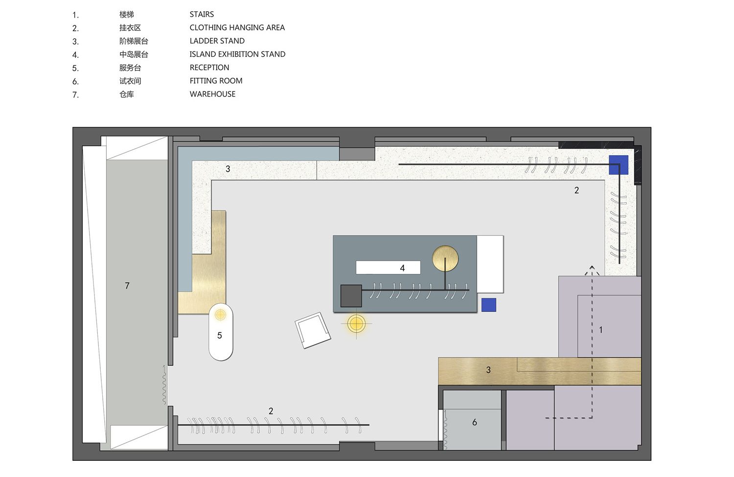
▲ 一层平面图

▲ 负一层平面图
项目名称:CKS——潮牌买手店
项目类型:买手店
建筑面积:220㎡
项目地址:青岛燕儿岛路17号3栋3号
设计机构:锐梵设计
主创设计:谢健
设计团队:江昕,李鋆莹
空间摄影:三景影像·王恺
设计时间:2020年5月
完成时间:2020年7月
好设计网 www.haoooo.cn 欢迎投稿:infohaoooo@163.com
好设计网 www.haoooo.cn欢迎投稿:infohaoooo@163.com
