成都私宅,“猫狗”的和谐世界
这一家的女主人书特别喜爱动物,为了宠物放弃了在世界500强的工作,转而经营了一家线上宠物用品商店,与先生焜也因此结缘。两人来成都定居后,不仅带来了原来陪伴自己的宠物们,又先后收养了几只。于是,到目前为止,家里共有9只猫,2只狗。夫妻俩希望能给予它们最自由的生活,平时都是散养在家里。需求是:能根据它们的生活习惯设置专属空间,尽量将生活区与玩耍区域分开,但和人类要有互动,居家功能要齐全,要有非常充足的收纳空间,整体要易打扫。
▼ 女主人与猫


首先,我们调整了客厅的轴线,将沙发安排在靠窗的位置,以最大化开阔中心活动区域。打通书房和客厅的墙,用宠物跑道代替隔断。尽管进入到室内视觉上是一眼能望穿的厨房、餐厅、客厅、阳台甚至书房,构造看似很简单,不同性质的空间混合在一起又形成了好些个小小的空间,依然能让居住者们获得非常丰富的居住体验。因为沙发位置的改变也让收纳空间与观影距离问题得到了完美解决。将原本位于走廊一侧的客房、次卫藏进隐形门,以现场制作柜体、隐形门的方式使之变为一整面“墙”。
▼ 沙发设置在靠窗的位置

▼ 厨房、餐厅与客厅连通

在餐厅增加了餐边柜与操作台,设计上满足女主人对日式餐厨形式的喜好。厨房推拉门做到了外侧,可以随心切换到开放模式,有朋友来聚会时,推开也能很大程度增加待客空间。主体材料基本就是:水泥、木材、水泥漆、超白钢化玻璃、毛毡,考虑方便打理这个关键点,没有使用什么特殊的原材料。
▼ 餐边柜与操作台满足女主人的使用需求

▼ 餐厅和厨房通过推拉门分隔

▼ 餐厅细部

宠物们活动最频繁的空间里除了餐桌、椅、茶几可挪动,其余都是固定的,避免主体间连接处的缝隙,最大限度使毛发能被轻松清扫。沙发的座位也采用了防抓绒布面料,宠物毛发不会扎到布料内,在表面用湿布轻轻擦拭就可去除。我们没有采用成品沙发,而是现场制作,最大化契合空间尺寸。沙发的进深做到了95cm,靠书房一侧的也有足足70cm,都能让人和宠物们以最舒适的姿势窝在上面。
▼ 家具的布置满足宠物活动的需求


由阳台进入室内到地面有一定高差,正好利用沙发主体的延伸,在两者间形成一个过渡区域防止猫砂被带入客厅里。在沙发两侧的底部,分别挖出了两个小空间,一边用来放置宠物们的水碗,避免被踢翻的同时也提升空间的整洁度,一边则可以用来“躲猫猫”。
▼ 防止猫砂被带入客厅的过渡区

▼ 客厅细部

电视墙以大量木作完成,会带来强烈的体块感,能够很好地提升空间的利落与干净度,即使有十余位原住民、无数物件也不会让空间有杂乱逼仄感。而这里由两扇隐形门、被隐藏后的空调以及大容量的收纳柜组成。我们尽可能去了解并分析他们的喜好、习惯。细致到诸如:鞋柜按照常穿的鞋码、样式去设计格间;统计宠物们的刷子、毛梳有多少把,大概是什么形状……然后,根据物品的不同材质、用途功能、使用频率等特点去规划储物柜的空间,挑选不同的收纳盒、五金配件或搁板以达成收纳分类。
▼ 木材带来强烈的体块感

▼ 隐藏门后的收纳空间

从平面上看,猫跑道让空间富有了环游性与趣味感。从断面上来看,跑道内部以及每一条通路上的洞口位置也是仔细分析猫咪行动路径后的结果。考虑到猫咪的生活习性,我们用定制的超白钢化玻璃打造了一个空中猫爬架,整个跑道有三条上下的通路。其中,从书桌的台面到上面的入口距离为60cm,这恰好是家里腿最短的那只猫能跳得上的高度。在跑道中靠墙一面都贴上了毛毡,配上另一面可推拉的玻璃门也方便清洁和更换毛毡。加厚不能敲掉的剪力墙体成一个小立柜,做成一条猫咪们的专属通道,既能用来隐藏插座,又能给猫咪们一个安心吃饭的空间。某一个不经意的瞬间,在工作中的业主如果抬头,一定能捕捉到好几个粉扑扑的肉垫悬浮于头顶。单向猫门的工艺非常复杂,为了方便它们在夜间行动,我们在墙体也制作了单向猫门。
▼ 供猫玩耍的跑道


▼ 单向猫门

宠物们都有个特质,喜欢用“原始的方式对抗人类社会快速的发展”(简单来说就是:咬电线!!)于是,我们分别做了:加厚主卧床头墙体,书桌内嵌插座的处理。保护电线,也保护宠物。除了在客厅建造了隐形仓库,在书房以及夫妻俩人的卧室,也制作了大容量的收纳柜。无论是他们珍藏的漫画书、手办,还是喜爱的衣服配件,在这个家都能找到最合适的安放位置。除此之外,在卫生间里我们也根据实际情况,特别增加了收纳空间,以便储藏宠物们的洗护用品。
▼ 卧室

▼ 卧室中设有大量收纳柜

▼ 主卫



▼ 洗衣区

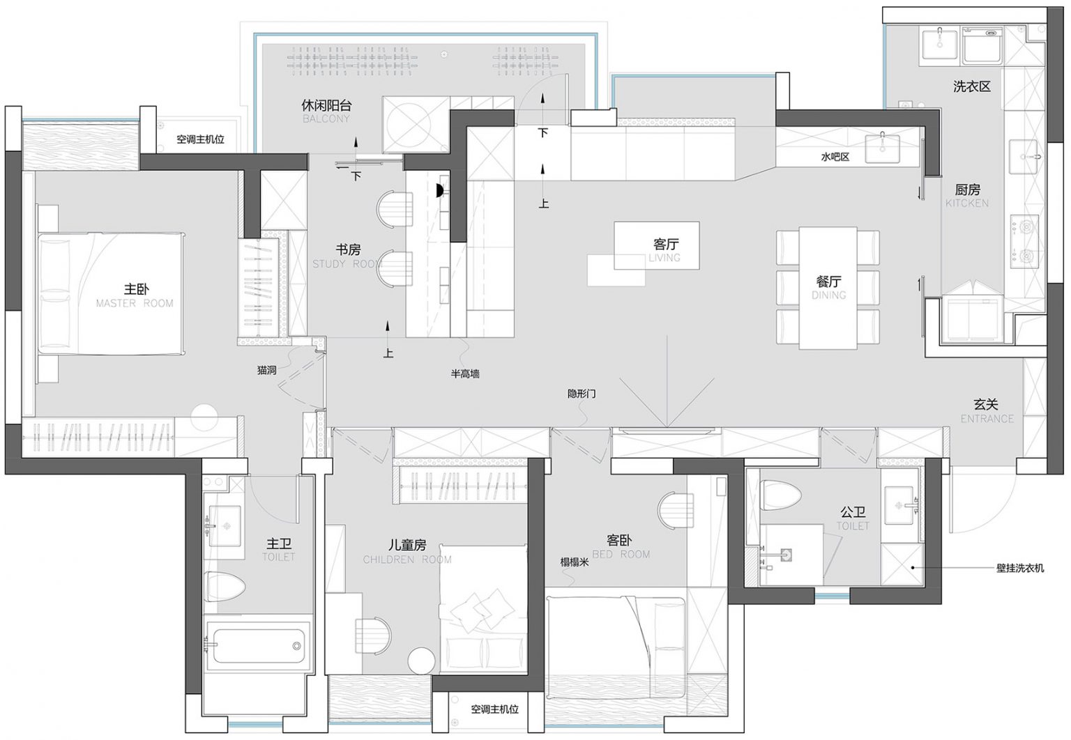
▼ 平面图

项目名称:猫狗星球
项目类型:住宅空间
建筑面积:132平方米
项目地址:四川省 成都市
设计公司:季意空间设计
设计团队:李佳、谢琴
主要材料:水泥、木材、毛毡、自流平、木地板、瓷砖、烤漆板、玻璃、白色乳胶漆
空间摄影:Icy Works
好设计网 www.haoooo.cn 欢迎投稿:infohaoooo@163.com
好设计网 www.haoooo.cn欢迎投稿:infohaoooo@163.com
