杭州绿城春月锦庐样板房“锦庐”,回归真实自我
艮山门外封存着杭州城市华丽的记忆,如今正蜕变成城市的新中心。绿城汲取“春天明月”之境与“半为西湖半为绸”之底蕴相融合,淬炼打造出高品质居所——春月锦庐。一街之隔即为30万㎡的“城市厨房”大型综合体,真实体验出则繁华,入则宁静。


其然设计(QIRAN DESIGN GROUP)以自然而然的手法糅合简约的基底、精致的装饰与宁静的色彩,为进入空间的人掠去心中浮躁,回归真实自我。整个居室犹如一首沉静的诗,需要慢慢读,慢慢品……




延续建筑外立面“超纤细(bezel-less)”的质感元素,为空间中的每根线、每个面进行合理地绘制和呈现,或错落,或穿插,而不同材质的纹理和色彩相互融合且对比,增强了空间画面的层次感。




客餐厅位于空间格局的核心,与国人住宅中的待客之厅相呼应。其间若隐若现的线艺隔断既分割了空间,又不完全封闭。流畅的布局和舒适的尺度增添了家人间的交流互动,同时也为日常的社交活动提供了恰到好处的生活场景。




散发着人文主义思索的艺术作品充盈其间,与自然绿色相交融,向居住者传达美学的内涵和向上的生机,同时激活了人与空间的对话,并升华了居住的品质。





围绕核心向四周铺陈的居住空间毫无疑问延展了设计的尺度,却又依据不同的居住者协调色彩和配饰的搭配,给予一种风雅含蓄的东方禅意。而尽观细节之处,一丝不苟的拣选皆是对于生活的态度。





寻一隅静谧,不论是让思绪沉浸的书房,还是让身心舒缓的卧室,亦或是享受美食的餐厅,都让居住者真正远离城市的喧嚣,沉淀内心自我的真实需求,并完全释放出来。



踏足户外,阳光照耀下的精致露台不仅美化了居住环境,还营造出自由的气息与浪漫的格调。领略四季变幻的模样,时光匆匆流走,闲暇日子里的美好时光让人格外舒心。

回归生活的本质,空间设计需要真正关注人的内心需求并承载居住者对于生活的期待。简约而精致的场景被赋予温度并与人的情感产生共鸣,使得无生命的建筑概念上被附加某种力量,最终落成“有温度的家”。

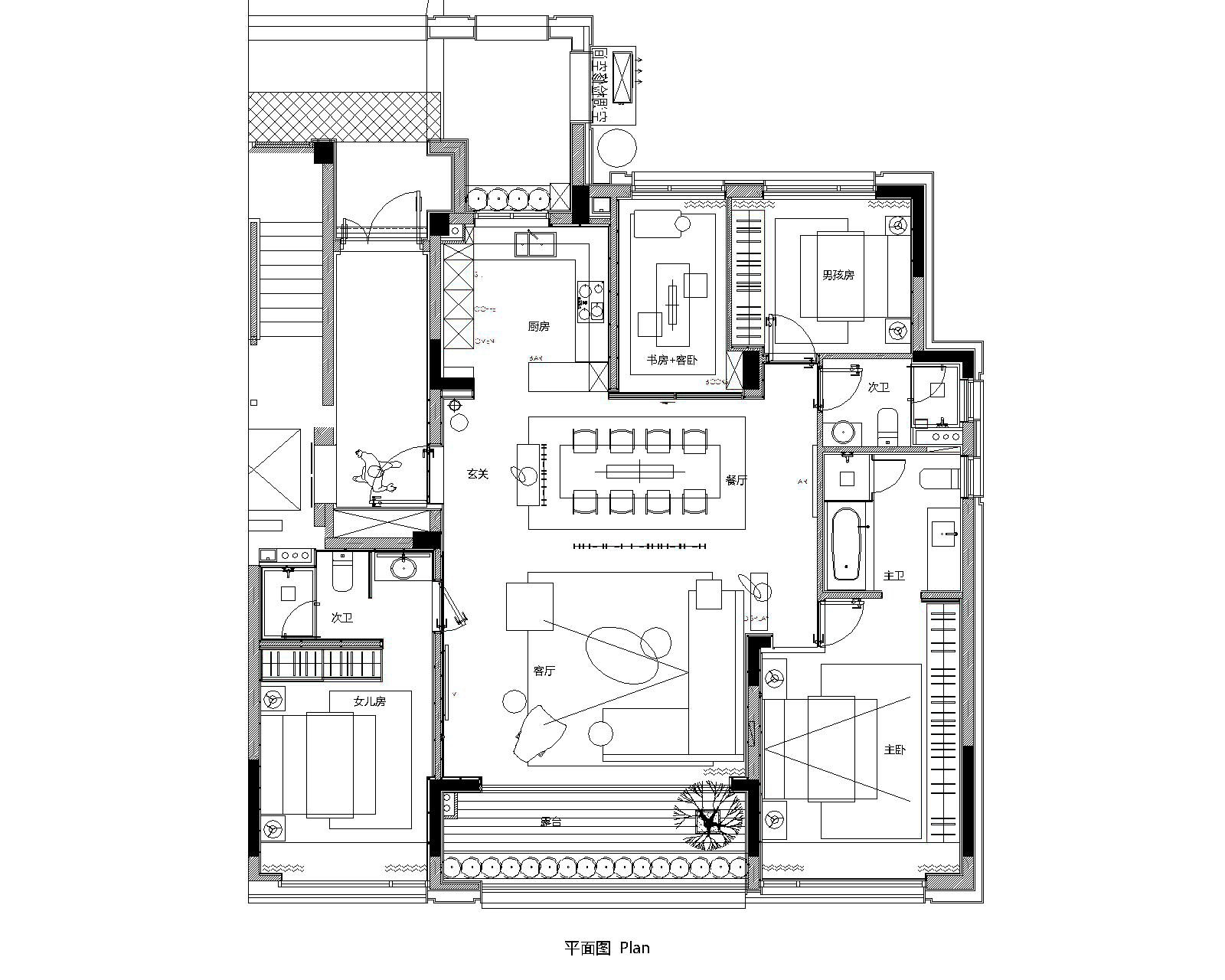
▼ 平面图

项目名称:绿城春月锦庐10#F2样板房“锦庐”
项目面积:153平方米
项目地点:中国 杭州
设计内容:室内软装
室内设计:LWMA李玮珉
软装设计:QRDG其然设计
软装主创:张华、陆炜
空间摄影:翰墨视觉 叶松
完工时间:2020年8月
好设计网 www.haoooo.cn 欢迎投稿:infohaoooo@163.com
好设计网 www.haoooo.cn欢迎投稿:infohaoooo@163.com
