重庆 “椒园”,向往的乡居
项目地处重庆近郊乡村,位于一处马蹄型陡崖的平顶之上,林木葱郁,视野开阔,是典型的西南山地田园风光。基地周边散落着各式各样的民居,或石砌、或砖筑、或夯土,成组成群或独立修建,保留着乡村发展的各个时期的修建特色或新旧更替的改造烙印。每户居所都有各自的前庭后院或屋顶露台作为生活劳作场所和作物晾晒场地。业主向往“故人具鸡黍,邀我至田家”的乡居生活,希望在这片土地建造属于他们的郊野乡居,房子周围开垦稻田、鱼塘、果园还有辣椒地……这是一座真正生长在土地上的农舍。设计者开始思考:建筑将以何种状态参与到这样的建筑肌理和景观秩序之中?


▲ 椒园位于马蹄型陡崖的平顶之上,林木葱郁,视野开阔

▲ 建筑俯瞰图
构思
马丁•海德格尔在《筑•居•思》中提到,筑造本身是一种栖居,是人在土地上的存在方式,他以“诗意的栖居”描述了“人”、“土地”与“建筑”之间相互依存的关系。空旷寥迹的田野,风、树、光、水、影在这片土地上汇聚交流,在几乎没有任何制约的用地条件下,设计者却感到处处拘束:山地肌理、古树稻禾、田园风貌……我们希望建筑“落地生根”,不是介入者而是作为参与者,以一种符合野间气质的形式锚固其中。


▲ 设计草图

▲ 生成逻辑
圆,似乎与场地有着天然的亲近,在包围之势中包围,用宽博的姿态去融入土地,而不是做生硬的切割与占据。“绿波春浪满前陂,极目连云耙稏肥”,通过圆弧形夯土围墙建立起建筑与场地的对话,这是自然发生的选择。带有弧度的围墙上开了许多不同尺度的洞口,通过减法使土墙变“轻”变“透”,内外对望,互通声气,营造出流动的感官体验。

▲ 围墙开有洞口,使建筑内外对望,互通声气
五幢不同功能的方盒子建筑精巧地散落其中,或突破,打断连续的界面使封闭围合的土墙得以“喘气”和“生发”,如同稻田也需要呼吸;或避让,保留场地中四颗有些年岁的香樟和楠木,让他们成为建筑自身的风景;或营造,与圆弧形夯土外墙配合形成相对私密的多重内院空间,每一处停顿与转身皆是景致。

▲ 打断连续的围合界面,使封闭的土墙得以“喘气”

▲ 保留场地中原生的古树



▲ 内院空间,每一处停顿与转身皆是景致
圆与方非为定式,而是基于当下场所语境做出的判断。在尺度的处理上,建筑会更松更淡一些,更多的空间去留给环境与自然。无需刻意营造,建筑与土墙的边界自然围合出了大大小小六处庭院,院落彼此之间相互渗透,又与院墙外的田地产生互动,使置身建筑的人似有如入郊野的恍惚。


▲ 庭院空间局部,彼此相互渗透
空间
入园,迎面的夯土影壁漏有长槽,视线隔而不断,庭院与树影影绰绰映入眼帘。

▲ 建筑入口,视线隔而不断

▲ 入口影壁,庭院与树影影绰绰映入眼帘
左转推门,视界缓缓打开,院子中间是一处水景,池中的树兀自生长,在碎石与静水中呈现出一股疏离感和生命感冲撞的张力。半通透的木质长廊成为建筑与庭院边界维系的暧昧空间,模糊了内外的感知,光、风还有景透过木柱和格栅毫无阻拦地延伸进建筑。

▲ 推门玄关空间

▲ 长廊与庭院,视界打开


▲ 木质长廊,光影透过格栅洒落



▲ 水景庭院,池中的树兀自生长
拐过走廊尽头的起居空间,右侧是四面通透的活动间,左侧两幢建筑夹出了通往第二进院落的磨石铺路。一侧靠墙种有芭蕉,绿意营造的同时收束了宅路的尺度,照顾到人行走其中的体验,空间上也强化了由收到放的戏剧转变。


▲ 四面玻璃围合的活动间

▲ 走廊尽端

▲ 通往后院的宅路
后院那棵百年香樟树是整个空间叙事的核心,树荫撑开,蛙虫鸣鸣,三两好友,围聚桌前,好不偃意?树旁的池塘突破围墙,向外延伸,一池睡莲似要接上远处漂浮的绿海。

▲ 后院与百年香樟树,树荫撑开,围聚茶歇

▲ 建筑夜景

▲ 池塘突破围墙,向外延伸
书房的一角突破土墙、递入稻田,悬于青青禾色之上。角部的设计在于“无”,没有任何遮挡和框架,结构柱子隐于两侧,落地窗收拢后只余上下两面限定视野,框出一幅“水满田畴稻叶齐,日光穿树晓烟低”的田园山色画。

▲ 书房的一角递入稻田,悬于青青禾色之上

▲ 角部没有任何遮拦,框出一幅田园山色画

▲ 建筑室内设计局部
屋顶露台作为人活动区域向外延伸,想要没有拘束的拥进自然。由侧面院落拾级而上,连接着二层的卧室,在两株大树的簇拥下成为绝佳的休憩观景场所,凉风拂面,入目皆是绿意。

▲ 屋顶露台

▲ 露台成为绝佳的眺望点
建造
土墙是西南地区传统民居常采用的建造方式,有质朴的外观和很强的气候适应性,但由于传统工艺的缺陷使得其结构强度和防雨防潮性能较差。设计中建筑外围采用了现代夯土的工艺来实现外围土墙的质朴造型,建造实施的过程反复调整用料配比进行试验,以期达到材料预想的色彩和质感。夯土墙上大尺度的洞口建造也是一个挑战,采用创新的夯土施工技艺实现了预期效果的一致。

▲ 夯土材料对比试验

▲ 夯土墙洞口施工工艺
探索
“羁鸟恋旧林,池鱼思故渊。开荒南野际,守拙归园田。”久在高楼林立、汽笛喧闹的都市,不知是否会有一刻突然停下脚步,然后就生长出了隐逸田园的乡居梦。


▲ 院墙之外,稻田秋收
重庆•椒园的项目是回归田园的乡建探索,讨论在地性的表达,充分尊重乡村山地肌理的随机特性和原始的地貌植被,随形赋势,以外圆内方的谦逊姿态融入场地与自然,建筑与圆弧形土墙相互交错营造出丰富院落空间,夯土、白墙与青瓦构成主色掩映建筑低调栖于野上。院墙之外,银杉、稻禾、果蔬、花椒……生长灿烂,希望椒园成为带着烟火温度和泥土芳香的心灵归处。

▲ 建筑空间轴测

▲ 一层平面图

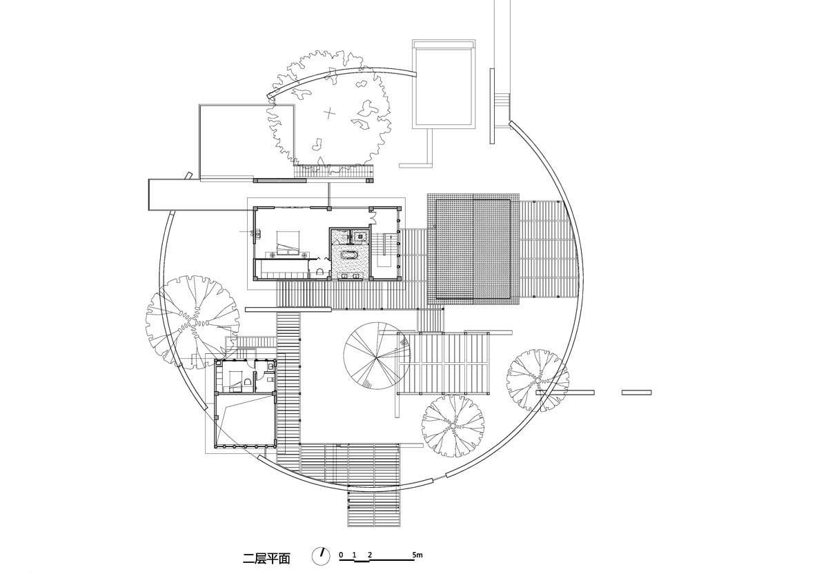
▲ 二层平面图

▲ 立面图
项目名称:重庆·椒园
项目面积:750平方米
项目地址:重庆巴南
建筑设计:重庆悦集建筑设计事务所
主创设计:李骏、何飙、田琦
设计团队:李涛、胥向东、张茜、王源盛、吴猛、王月东、王潮(实习)、李飞扬(实习)
室内设计:重庆尚壹扬装饰设计有限公司
空间摄影:三棱镜建筑空间摄影
项目年份:2017.08~2020.04
好设计网 www.haoooo.cn 欢迎投稿:infohaoooo@163.com
好设计网 www.haoooo.cn欢迎投稿:infohaoooo@163.com
