杭州onnnnnne more酒吧,充满着未来主义色彩
onnnnnne more 是调酒师seven多年的梦想,在城市的一隅有一个属于自己的小酒吧,可以和朋友有个喝酒聊天,分享生活的地方。虽然扛着创业的压力但也给了自己不断成长的自由空间。
▼ 项目外观

现在的onnnnnne more已经经营了一段时间,俨然成为了当初seven想象的样子。越来越多生活的故事在里面分享,工作的烦恼在里面排解,好似一个乌托邦。 但在设计的时候我们却选取了一个反乌托邦的“赛博朋克”风,因为它位置虽在杭州市中心地段,但周围街区并不是高大上的商场写字楼,而是一个充满生活气息的街边小店,所以我们想到了赛博朋克的那种“高科技,低生活”的基调应该很符合这个氛围。我们在设计中采用了充满着未来主义的形式,让它与周边的氛围有一种跳脱感。
▼ 项目外观局部


▼ 窗口细节

酒吧整体空间并不大,但里面却功能齐全分区明确。除了夜间酒吧seven还在白天卖一些抹茶饮品,所以入口我们设置了一个像售票窗口形式的区域,对接着外摆区,通过这个窗口与客人分享抹茶。窗口区域的设置导致右边仅有一个狭小的过道,通过顶面不断浮动的线形LED屏幕延伸至最深处。
▼ 走廊尽头

▼ 吧台


跟着动态的屏幕进入内部,就是酒吧最核心的区域吧台。吧台区域整体充满了未来感,微弱的灯光透过未来感的造型让这个吧台区域非常舒适和放松,有一种瞬间把人带入另一个次元的感觉。在这里你可以坐在吧台前与seven聊天或者看着他调酒。吧台区域右侧有一个残破的窗洞,这个洞口是西湖的形状,残破的墙面有很多客人的涂鸦,就像他们在这个城市留下的印记一样。
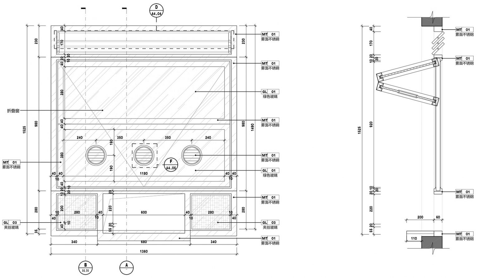
▼ 西湖形状的洞口

透过洞口可以看到里面还有一个区域,这是三五好友相聚聊天的座位区。低矮舒适的座位也更容易卸下往日的疲惫,完全沉浸在这个“未来世界”。这个区域还有一个镜面动态屏幕在不断循环着一些充满科技感的画面,同时也扩大了空间感。
▼ 客座区

▼ 动态视频

这就是我们和seven在一个仅几十平米的小空间为大家创造的一个未来聚集地。也希望onnnnne more给更多这个城市的人们带去温度。
▼ 机能风格墙面涂鸦

▼ 墙面涂鸦和空间细部

▼ 道具细节


▼ 轴测图

▼ 平面图

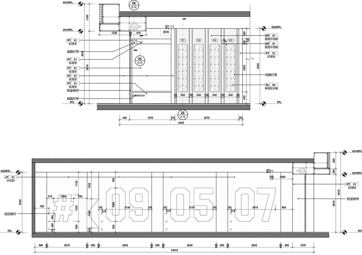
▼ 立面图



项目名称:onnnnnne more
项目类型:酒吧空间
项目面积:65平方米
项目地址:浙江省杭州市下城区建国北路485号
设计公司:或者设计
设计总监:巫国源
设计团队:黄玮、占锦明、赵丽颖、柳奕豪、陶媛、蔡赛宇、叶官欣
设计范围:外立面、室内设计、灯光设计、道具设计
施工团队:言润装饰
主要材料:水泥、不锈钢、瓷砖、绿色亚克力、加气砖
空间摄影:或者设计OR Design
项目客户:seven
好设计网 www.haoooo.cn 欢迎投稿:infohaoooo@163.com
好设计网 www.haoooo.cn欢迎投稿:infohaoooo@163.com
