日本樱熙居,营造“月下夜樱”简单而优雅的居所
一切由一幅画开始
这幅传统的日式绘画被称作“Yozakura Gekka”(月下夜樱),由千住博创作,描绘了一幅月夜下一棵树枝低垂盛开着的美丽樱花树。

画的主人希望有一个专门能欣赏它的地方,在那里他能安静地享受樱花凋谢的美丽景象。他想要一个简单而优雅的环境,希望能够将客厅,书房与居室打造成奢侈酒店那样。
这栋建筑建于40年前,此次翻修后,原来的结构保持不变,但房子的西侧被改造成了一个单独的,包括客厅、书房区域和居住区域的宽阔空间。储藏单元在两区域之间,将它们分隔的同时又不完全封闭整个空间,保持空间的开阔。厨房和洗手间则被安置在了西侧。

为了体现主人对这幅画和樱花盛开的喜爱,此项目的理念是将这幅画成为房子的中心,而不是创造一个空间展示它。






四季
设计借助了自然界中四季的概念。而画代表着春天。夏天:由滑动门上的麻叶图案象征。光线会柔和地透过有麻叶图案的纸屏风进入房间。秋天:由漆板上的枫叶象征。冬天:由编入松针图案的置于天花板的绸物象征。樱花能耐严寒一直到它们开花。冬天是补充这幅画一个必不可少的元素。











▼ 改造前 & 改造后

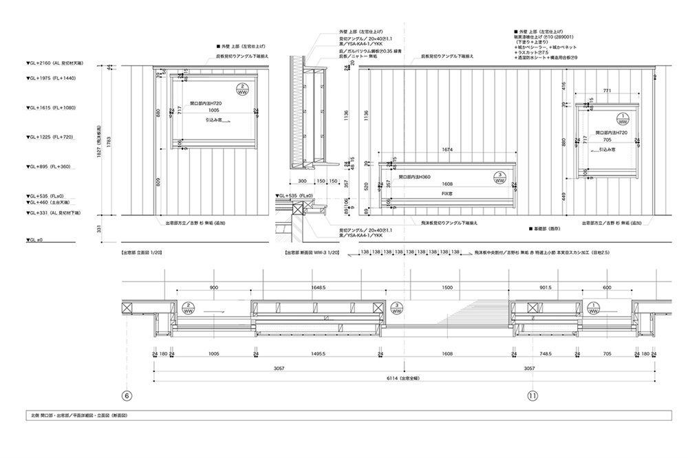
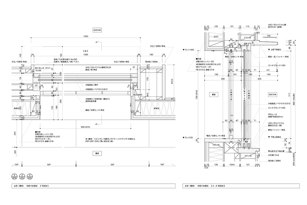
▼ 详图



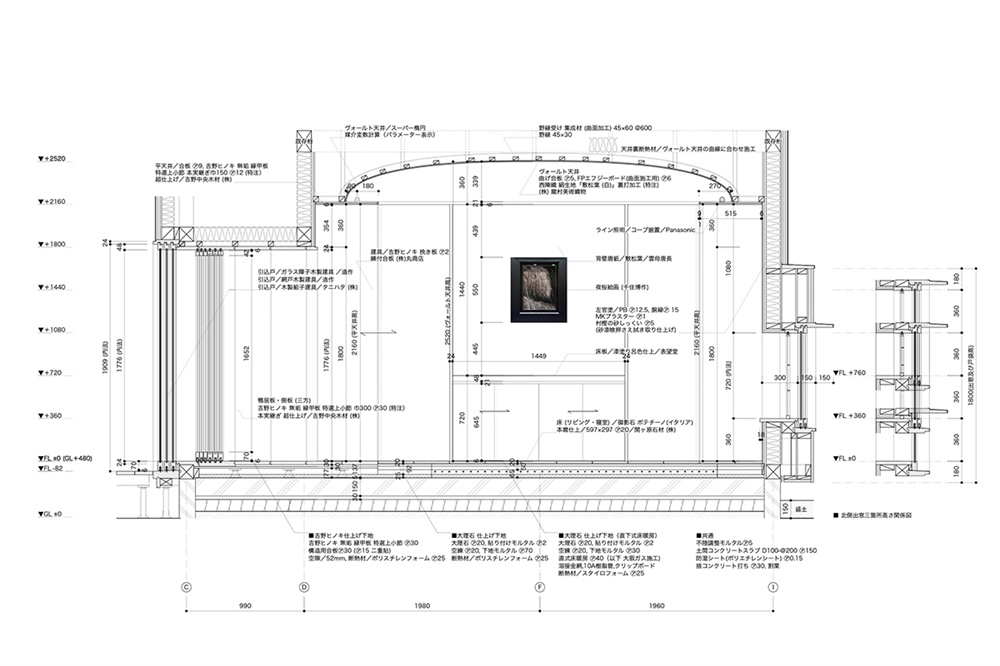
▼ 剖面

项目名称:樱熙居/Oukikyo
建筑面积:66㎡
项目位置:日本(和歌山)
设计公司:闰间室内设计(北京)有限公司
本案设计师:田村笃昌/Atsumasa Tamura
官网:http://www.atsumasatamura.jp/cn/
摄影师:照井壮平/Sohei Terui
主要材料:大理石/木材/丝绸
地面大理石-品牌Sekistone-花色Botticino Classico
天花丝绸-品牌Tatsumura-花色Shiki Matsuba Monyou
推拉门-品牌Tanihata-亚麻花纹
完成年份:2018 年 04 月
好设计网 www.haoooo.cn 欢迎投稿:infohaoooo@163.com
好设计网 www.haoooo.cn欢迎投稿:infohaoooo@163.com
