清迈微型酒店,如鱼群跃出波光粼粼的海面
小小庇护所酒店位于清迈,古老的城市景观和乡土建筑特征通过木结构和木瓦坡屋顶形式表现出来。酒店屋顶形式的灵感来自传统的四坡屋顶,向当地建筑致敬之余,并以不对称的形式与周围的树冠轮廓自然地融合在一起。屋顶的西侧部分被设计成一个屋顶平台,供客人们欣赏日落时的河景。



该设计通过使用传统材料——木瓦来延续当地的建筑特色。 该材料最有趣的地方是其系统已经发展了数百年, 小型木瓦单元像鱼鳞一样被排列布置成一块防水的建筑平面。


该设计还探索了将新材料融入系统的可能性,创造了一个根植于传统的现代建筑表面。木瓦用于屋顶和侧墙上。在朝向河景的立面上,聚碳酸酯板被切割成与木瓦大小相同的尺寸,构建出半透明的建筑立面。

入口外立面的上部由实木瓦组成,它们在下部与聚碳酸酯瓦融为一体。虽然使用传统的木瓦系统,但不间断的半透明表面是通过使用半透明螺柱和透明螺钉的特殊细节设计实现的。

立面在阳光下闪闪发光,因为光线接触到不同的材料颗粒,从实木瓦到不同透明程度的聚碳酸酯瓦上。光线穿过外立面,随着天空光线条件的变化,在不同的时间营造出不同的室内氛围。到了晚上,有了室内的灯光烘托,建筑仿佛成了河堤上一盏发光的灯笼,看起来不像建筑物,而更像是一件工艺品。


公共区域内部的设计与外部的简约处理相得益彰,呈现出一种画廊般的感觉。还有以Boh-Srang伞为灵感而特制的装置艺术品,以其细腻而富有戏剧性的造型表达了对当地手工艺的现代诠释。





客房内部为客人们提供了一个认识清迈的全新角度。整个天花板上都是清迈的重要景点和活动的图像,如古城墙、水灯节、松树林、Pah-Chor峡谷等。
这些图像被无限地反射到两堵长长的墙上,墙面上贴着镜面瓦片,给人一种超现实的无边界感。14间客房的图像各不相同。每一种都散发出不同的独特感觉:宁静、俏皮、文雅、神秘等等,能够满足客人的不同喜好。



酒店不仅仅是休息的地方,它还向游客介绍着清迈的过去、现在,或许还有未来。

▲ 一层平面图

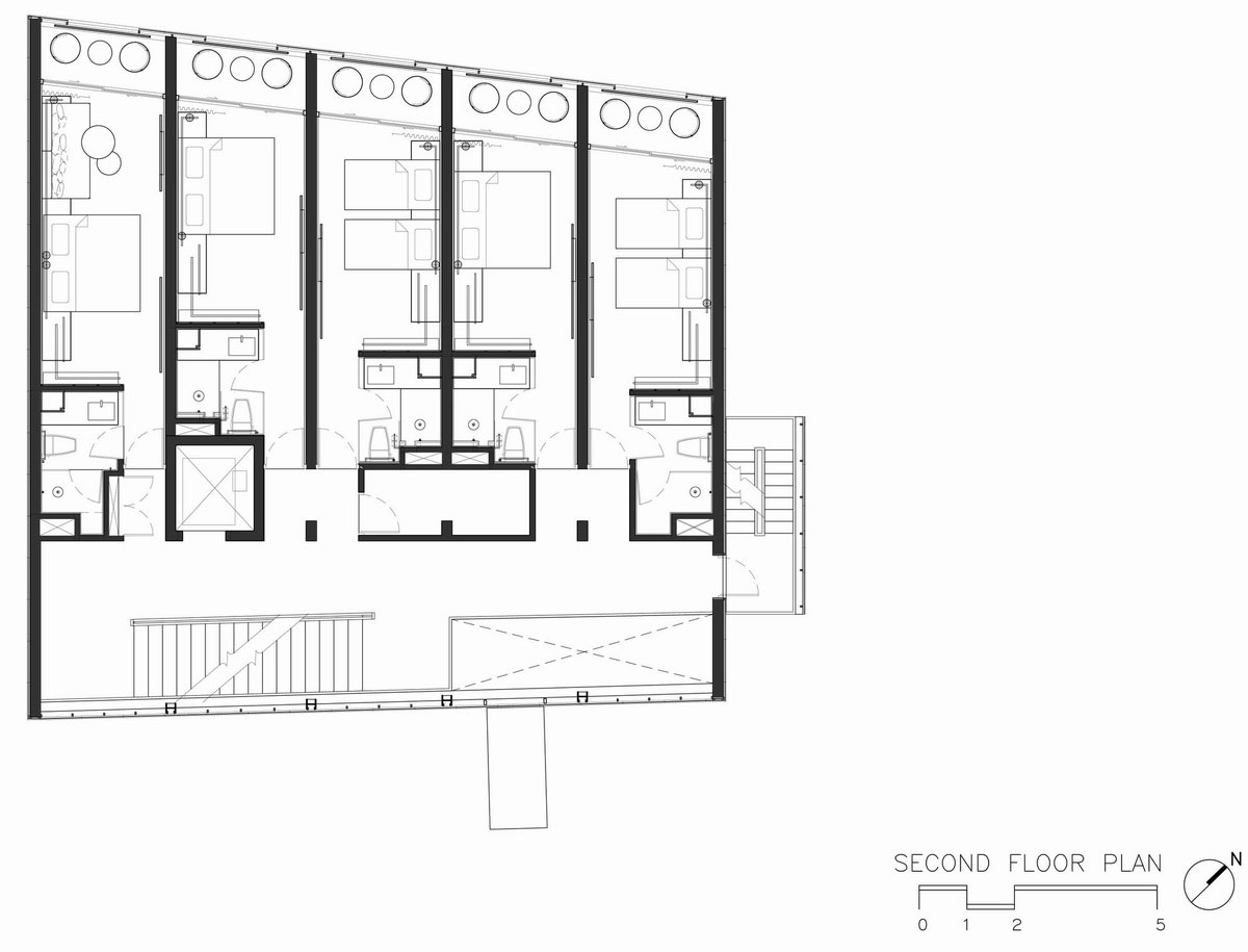
▲ 二层平面图

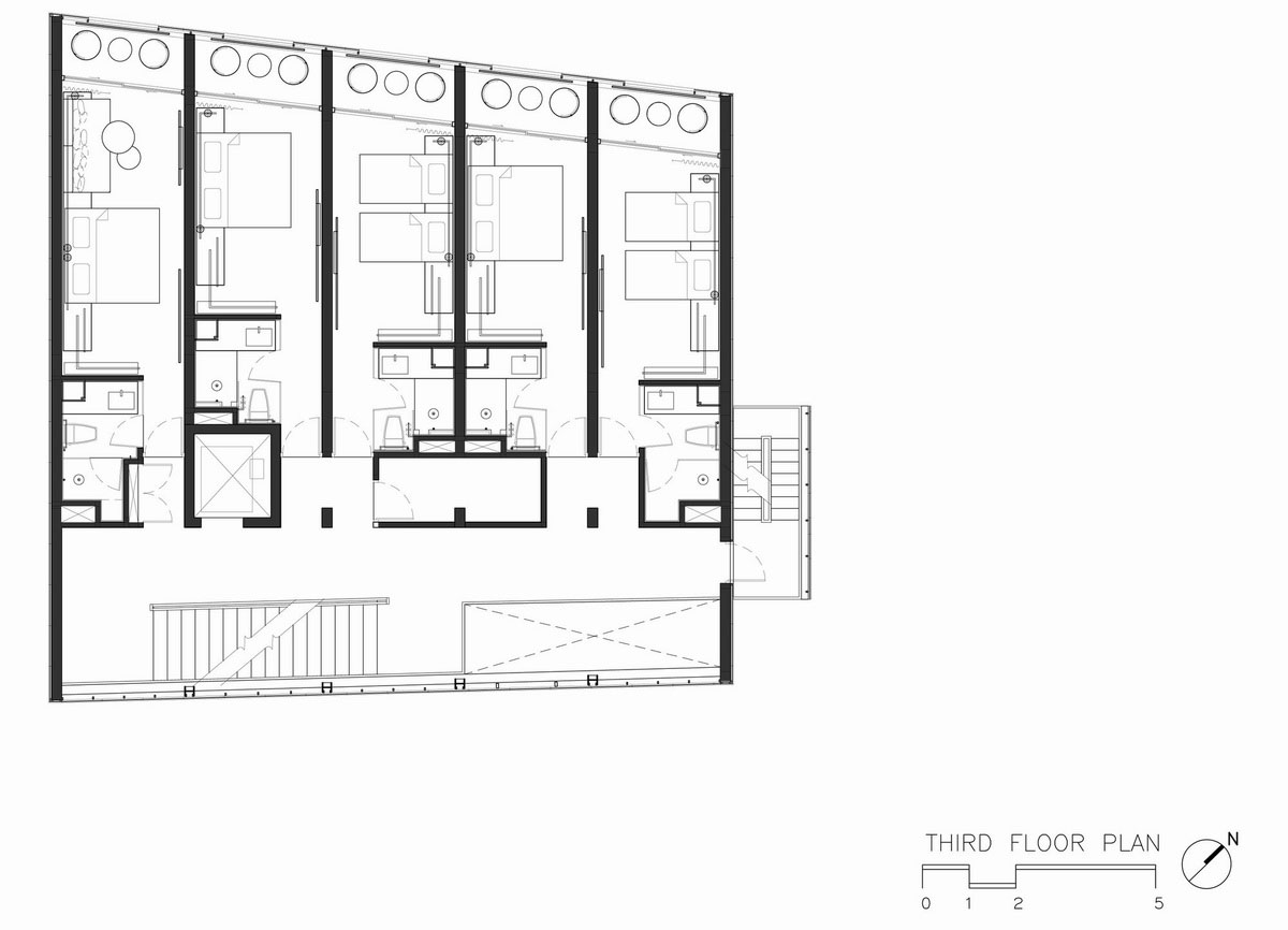
▲ 三层平面图

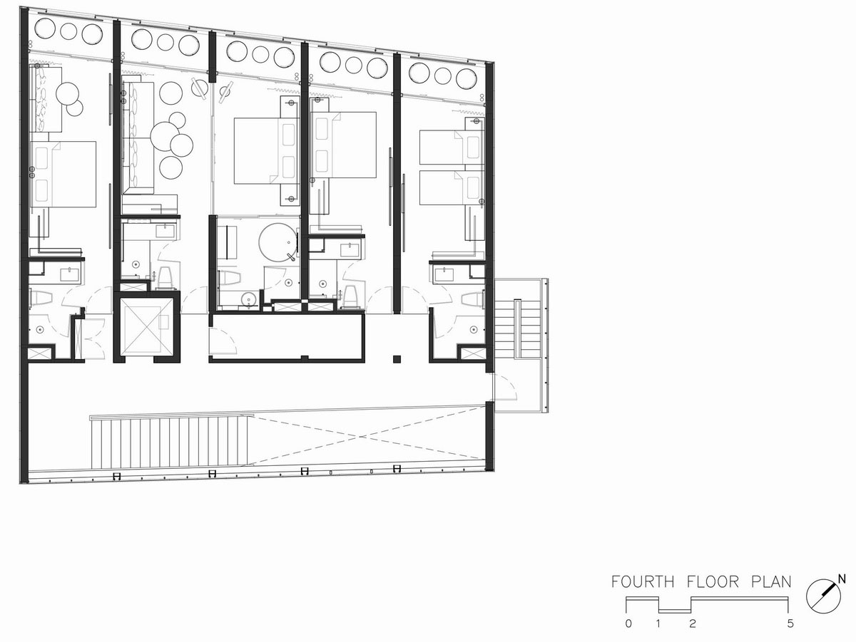
▲ 四层平面图

▲ 东立面图

▲ 西立面图
类别:酒店
建筑面积:890.0 m2
地址:208 / 25 Chiang Mai-Lamphun Rd, Tambon Wat Ket, Amphoe Mueang Chiang Mai, Chang Wat,清迈,泰国
设计方:Department of Architecture
主创设计师:Amata Luphaiboon, Twitee Vajrabhaya Teparkum
设计团队:Adhithep Leewananthawet, Pitchaya Poonsin, Tanadeth Mahapolsirikun, Supavit Junsompitsiri, Yada Pianpanit, Apisara Lertrattanakit
室内设计:Department of Architecture
工程师:NEXT Engineering Design Co.,Ltd.
景观设计:Department of Architecture
施工方:NEXT Engineering Design Co.,Ltd.
灯光:Accent Studio By Nopporn Sakulwigitsinthu
摄影师:W Workspace Company Limited
客户:Little Shelter Co., Ltd.
项目年份:2019
好设计网 www.haoooo.cn 欢迎投稿:infohaoooo@163.com
好设计网 www.haoooo.cn欢迎投稿:infohaoooo@163.com
