西班牙Öcher住宅,闹中取静
一道坚固的混凝土墙成为展现整座项目的关键元素所在。这道墙在某些区域相当高,在某些区域又半埋于地下,属于住宅的一道保护机制:一方面,它保护住宅避开北侧和西侧等不利朝向条件;另一方面,它保护房子免受周边地块视线的干扰。除此之外,它也是一种对土地的调控措施,能够帮助住宅形成平坦的空间并与地块较大的高差相适应。



墙体呈现出一种清晰的“L”型,其作用也非常明显:住宅能够完全向私人花园打开,面朝东侧和南侧开窗。朝向花园的立面看起来柔和而温暖,采用伊罗科木制成的竖板和大玻璃面的条形窗构成。卧室布置在较长的体量内而客厅则设置在较短的体量内。相比之下,北立面和西立面略显粗糙,它们是墙的领域,而“L”型的背面则由混凝土和锌板构成。光线只能从某些特定位置上的彩色孔内穿入。


第二道“L”型的墙体形成了一个较矮的体量,里面设置有门厅,设备用房和车库。这部分体量也是一道“防守性元素”:其正立面较为抽象,由伊洛可木构成,可以阻挡看向室内的外部视线;其后立面便是上述提到的“L”型墙,是花园的侧挡墙。这部分空间对入口区域形成遮挡和限定,引导室内的人们看向远处的风景。



就建造过程而言,这座住宅可以看成是一种由“面”构成的游戏,与空间和体量等三维元素语言的关联度不大。因此上述的混凝土墙是服务于首层平面的边界性面元素;木制表面构成了朝向花园的围合面;最后还有一块巨大的锌板形成倾斜的平面,悬挑于墙的上方。事实上,这部分的结构是以金属柱子为支撑从墙上悬挑而出,这部分同时也由花园四周的立面墙体支撑重量。




这是一座独立而内向的房子,它的主要空间和中央花园宁静而柔和,仿佛是一处避世而存的自然之地。如果有人站在这样一处空间的中心,就完全感觉不到这座住宅位于一片用地狭小而拥挤的居住区内。建材全部是纯天然。



与外立面相反,室内装修材料都经过了精心的处理。外部纯天然的材料与内部光滑而洁白的分隔墙和吊顶形成鲜明对比。当然有些材料也隐约显出了与外表面相似的“真实感”:例如卧室的地板和某些垂直的幕墙是用丹麦的天然松木作为饰面的;还有柱子,虽然它们被刷成了白色,但是从内部可以显露出原本的材质。简言之,室内空间是一个更抽象的环境,以倾斜的天花板和隔板为主导元素,其间穿插有柔和的光束。






客厅大概是这个项目的亮点。它位于“L”型墙壁的尽端处,是住宅中最大的室内空间和内外结合区域。大尺寸的玻璃滑动门和锌板屋顶围合出来的门廊使这处空间的日常活动成为花园本身的延续体。客厅的旁边是厨房,背后是丹麦松木的软木板构成的墙壁饰面,其前方是低矮的门廊(仅有2.36米高)和倾斜的天花板,外部是花园和远处的潘普洛纳山景。项目所用材料所带来的隔离性、私密性和自然性也是本次住宅项目的特点。




▲ 总平面图

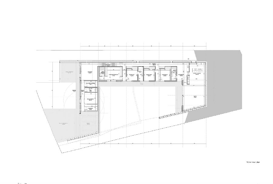
▲ 一层平面图

▲ 南、东、西立面

▲ 东立面和西立面

▲ 纵向剖面图,剖客厅部分

▲ 纵向剖面图2



▲ 轴测图




▲ 草图
项目区位:西班牙,纳瓦拉
建筑面积:400.0平方米
建筑设计:MLMR Arquitectos
建筑设计:Javier Martín, Víctor Larripa, Javier Martínez, Daniel Ruiz de Gordejuela
项目摄影:Josema Cutillas, Pablo García Esparza
施工方:ECAY construcciones
项目时间:2017年
好设计网 www.haoooo.cn 欢迎投稿:infohaoooo@163.com
好设计网 www.haoooo.cn欢迎投稿:infohaoooo@163.com
