芬兰波浪住宅,独一无二的曲线设计
Seppo Mäntylä / 芬兰
2018-05-15
波纹住宅是由芬兰本土致力于建造木质建筑的公司 Polar Life Haus 监制的新兴原木木屋。由芬兰事务所 Seppo Mäntylä 设计,波浪住宅融合了实木,玻璃和钢材料的建造。独一无二的曲线设计是受到船舶和飞机造型作为灵感启发建造的。



这间住宅在米凯里市2017年8月举行的芬兰年度住宅大会展出。期间获得了全部三个奖项:最佳住宅,最佳室内设计,以及最佳庭院。





Polar Life Haus是一家可以追溯到1907年的芬兰家族产业,在芬兰又被称为Honkatalot。以环保建材和注重自然与健康结合为主旨,该公司为独立设计的木质房屋提供建造业务。其中,每年有一半的建成房屋会出口全世界,其中主要出口德国,法国和俄罗斯。

Seppo Mäntylä为芬兰木质房屋领军建筑事务所。Polar Life Haus曾与其合作多次。


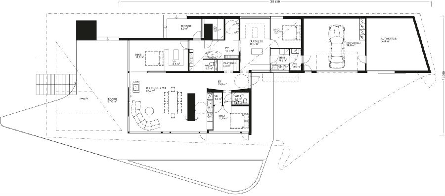
▲ 平立面

▲ 立面图

▲ 立面图

▲ 立面图

▲ 立面图
地址:Mikkeli, 芬兰
建筑师:Seppo Mäntylä
摄影师:Studio Hans Koistinen
项目年份:2017
好设计网 www.haoooo.cn 欢迎投稿:infohaoooo@163.com
好设计网 www.haoooo.cn欢迎投稿:infohaoooo@163.com
