杭州市北山路69号,历史建筑的延续和再构
本项目位于杭州市北山路69号,用地长宽方向各约30米,现存三幢房屋,其中一座是历史保护建筑。该历史建筑共两层,始建于二十世纪30年代,因为年久失修,早已堙没在游客如织的北山路上。上世纪50年代,著名作家史莽先生曾在此居住,并为该楼提名为“集艺楼”,各界文人曾集汇于此笑谈烟云。


主体房屋建造于民国时期,为砖木混合结构,约在上世纪70年代加建过一次,后排一层建筑据推测建造于上世纪60年代。地块内还有几颗大树,其树龄与建筑年代基本一致。几十年间因居住者的需求变化搭建过多次简易房,使得空间滞堵、凌乱,整组房屋已废弃多年破败不堪,经鉴定为危房。

作为西湖边的历史保护建筑,如何对其修缮,保护与传承北山路的历史风貌。保留精华,去其糟粕。让它存在于当下,融合于西湖美景之中。我们更希望它展示的不仅仅是集艺楼的魅力,而是西湖的人文之美。


庭院基本位于几何中心,院内有两棵树,所有的功能组织以此庭院为中心展开,让两棵树成为真正的主角。


庭院与外部道路出入口之间有3米高差,中间有5颗大树。入户园路是由石板和拆除下来的旧青砖铺筑而成,两边种上龙井茶树,成为内外的过渡空间。



中心庭院是一个狭长的空间,与主入口门廊对峙的一层房屋外墙作为入口对景打造,采用场地上拆除的旧红砖砌筑成虚实对比的效果,阳光在红砖墙上映出有趣的光影。



北面的房屋为一层,是一个带有独立庭院的套房。我们尽可能设置大面积玻璃,兼顾私密性的同时使房间与外部庭院相互渗透。


我们对建筑的外墙并没有过多的装饰,改造过程中我们更希望反映墙体材料本身的肌理和色彩,所以对红砖和青砖部分没有做任何的饰面处理。而对于临街面一栋历史保护建筑则保留了其涂料外墙的历史特色,我们选用灰色涂料做了水波纹处理,让人们想到波光潋滟的西湖水面。






随主楼梯而上屋顶的阁楼层,也是观赏西湖的最佳位置,面对相对低矮的空间,唯有天窗能改善室内感受,仰望天空的同时还是充分借景。我们在重新搭建了屋顶后顺势将部分屋顶改造为平屋面,设置屋顶露台,可阅读品茶,可闲聊休憩。

本项目在2016面10月正式对于外营业,一年来我们做过几次回访,住客的满意度较高。在对待历史建筑改造的课题上,我们给出了自己的见解并付诸实践,至于能否经受住考验,时间会给出答案。




▲ 项目区位

▲ 总平面图

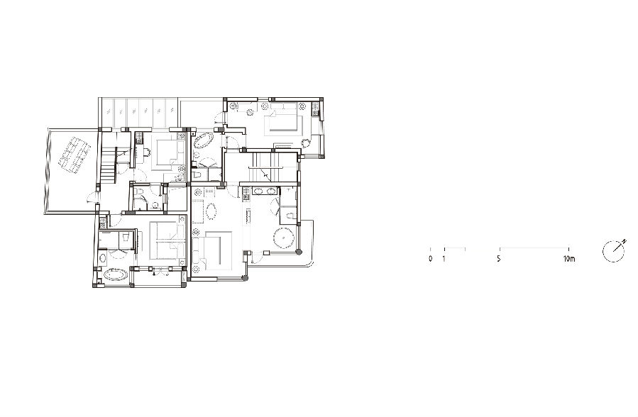
▲ 一层平面图

▲ 二层平面图

▲ 剖面图

▲ 鸟瞰图


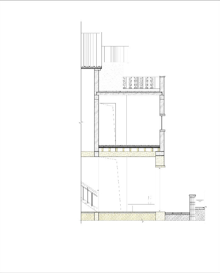
▲ 墙身详图
项目名称:北山街69#(集艺楼)改造
用地面积:1000平方
建筑面积:600平方
地点:杭州市北山街69号
设计单位:中国美术学院风景建筑设计研究总院
主创建筑师:陈夏未,黄志勇
建筑设计:柯礼钧,王凯,金拓,虞光洁
景观设计:王源,向涛,彭俊霖
室内设计:林燕华,贾宜跃
结构形式:砖木结构
摄影;奥观建筑视觉
业主:杨东栋,丁琳夫妇
设计:2015年6-12月
竣工:2016年10月
好设计网 www.haoooo.cn 欢迎投稿:infohaoooo@163.com
好设计网 www.haoooo.cn欢迎投稿:infohaoooo@163.com
