比利时花园式现代住宅,享受花园的开阔视野

Steven Vandenborre / 比利时 根特
2018-05-25

比利时工作室Steven Vandenborre在一座根特的家庭住宅后方添加了一个体量,建筑师运用了大量的玻璃幕墙来突显花园的美景。


这个名为Pied-a-Terre的项目一直延伸到根特市中心一所住宅的后院,这座住宅属于一对已婚夫妇和他们的四个孩子。


丈夫和妻子一直在比利时和美国之间往返工作,因而他们邀请当地工作室Steven Vandenborre为他们创造一个额外的舒适居住区域,以便无论何时回国都可以放松身心。他们还要求建筑师将玻璃的使用贯穿在整个设计中,以便享受花园的开阔视野。


考虑到这一点,建筑师决定创建一个由欧洲灰框架和大型玻璃面板构成的窗格结构,并将建筑材料都放置在原有的住宅之中。


“它被大学校园,古老的塔楼,大教堂,甚至是亨利范德维尔德设计的著名的Boekentoren大厦包围着 - 这是一个真正的秘密花园,”该工作室说。


底层采用L形平面布局,通过层叠的混凝土露台可以进入室内,从而 “与不同层次的旧花园建立联系”。


室内设有一个开放式的起居室和餐厅,色调偏中性化。浅色的早餐岛搭配着木质纹理,界定了光线充足的厨房色调,与后面的橱柜相得益彰。

室内设有一个开放式的起居室和餐厅,色调偏中性化。浅色的早餐岛搭配着木质纹理,界定了光线充足的厨房色调,与后面的橱柜相得益彰。

花园古老的战时沙坑也与建筑连接起来,转变成一个媒体室,室内表面装饰着木材,让人联想起传统小屋的外观。

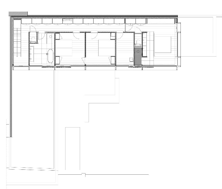
扩建住宅的二层是一个直线型体量,卧室和洗涤区围绕中央壁橱空间布置。精心摆放的木板屏障保护着这层的隐私空间。


一层平面图


二层平面图

▲ 剖面图

Steven Vandenborre在其他项目中也广泛使用了玻璃幕墙 - 此前,该工作室曾在布鲁日设计过一座带混凝土顶棚的玻璃水池房屋,并在根特创造了另一座立面上装饰着大型斜窗的家庭住宅。

好设计网  www.haoooo.cn      欢迎投稿:infohaoooo@163.com

好设计网  www.haoooo.cn
欢迎投稿:infohaoooo@163.com