Bisate 度假屋,隐于茂密丛林中的独特度假体验
项目灵感源于卢旺达当地起伏的山丘和位于尼安扎的国王宫殿所呈现的茅草屋建筑外形。项目基地则位于卢旺达火山国家公园附近的一处茂密丛林中。Bisate度假小屋所呈现的是卢旺达当地固有的自然文化和复杂的空间形态。建筑师专门设计的球形空间,配合屋外的公共区域,在当地错综复杂的环境中,展现了一个恰到好处且可持续的设计方案。该项目旨在呈现当地历经时间考验的独特文化和现代豪华生活间的完美融合,以此为顾客提供一份独特的度假体验。




受当地自然条件的限制,度假小屋所有的结构部件和空间原型都必须在南非首都的开普敦事先制造,然后再原地拆解后,运输至项目基地重新安装成型。此外,因度假屋地处偏远山区,所有的基建设施和服务系统都事先安装于预制的空间原型内,包括小型的独立电力系统。

总的来说,Bisate度假小屋是现代豪华生活与可持续建造技术间的完美融合,既满足了顶级的度假体验,又充分考虑了当地固有的文化脉络。





▲ 场地平面图

▲ 平面图

▲ 西立面图

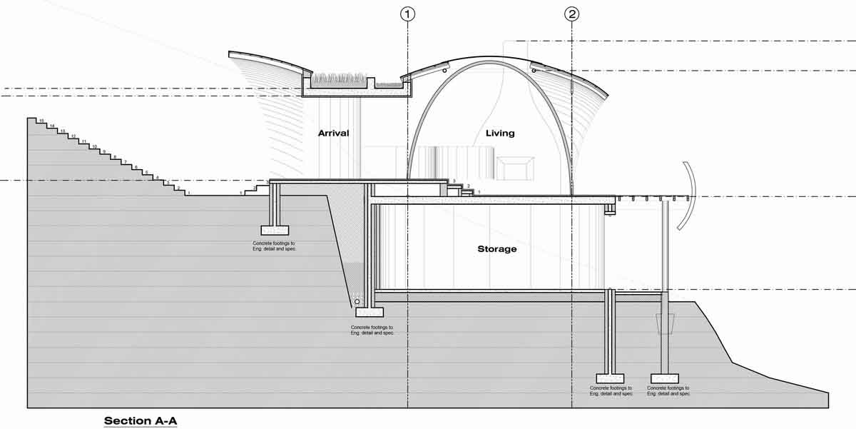
▲ 剖面A-A

▲ 剖面A-A

▲ 剖面B-B

▲ 剖面B-B
业主:Wilderness Safaris
类别:可持续发展
地址:Rwanda – Virunga National Park,卢旺达
建筑事务所:Nicholas Plewman Architects
主创建筑师:Garreth Kriel, Nick Plewman
室内设计师:Artichoke Interiors
厂家:Autodesk, Fibre Thatch, African Reed, Rebel Lighting, Google
工程师:De Villiers Sheard
摄影师:Crookes and Jackson
项目年份:2018
好设计网 www.haoooo.cn 欢迎投稿:infohaoooo@163.com
好设计网 www.haoooo.cn欢迎投稿:infohaoooo@163.com
