无锡And Sugar中式点心店,细细寻味你的慢生活
在暨阳路这条老旧的街上,有这么一间店铺别具现代设计感,那就是And Sugar,在整条商店街中格外醒目,而来访的客人也络绎不绝。纯白色的外立面、圆弧形的门、镶着透亮的大块玻璃,仿佛主动招呼着每位路过的行人进去探索。
▼ 店铺外观

And Sugar是一家中式点心店,位于江阴市暨阳路218号,特色做包子,各种点心。围绕着手工天然的理念,关注生活的每个日常,并以此作为灵感融于他们的食物创作。
▼ 店铺入口


印象里的中式点心店,无非是开在街边环境一般,甚至有些凌乱的的小窗口,阿姨快速地把点心递出来,付完钱就走人。想要美美的坐在店里拍照,几乎是不可能的。但进暨阳路的这家点心店,却与众不同。
▼ 纯净的室内空间

▼ 从店铺内看向街道

主理人包女士曾说过“希望你们会为了我的菜包慕名而来”所以我们:“以最干净最直接的方式,小细节的呈现,体现出了整个店铺独有的气质。”
▼ 入口边休闲区

▼ 收银区,走廊尽头为通向二层的楼梯


▼ 楼梯细部

纯粹以售卖、展示点心为主。深藏在暨阳街道,和闹市毗邻却也可以被江阴的巷弄带出一些距离感,这样的距离感却刚刚好,它一直吸引着与其相似的一群人。
▼ 二楼走廊边的展示区

▼ 展示区细部

在步履匆匆的现代快节奏生活中,慢下来到And Sugar,细细寻味你的慢生活,让你的舌头和内心都找到归处,生活的小美好或许就在这里发现,如果你也想寻味美好新生活,不妨亲自到And Sugar坐一坐吧。
▼ 二楼休闲区,提供悠闲享受生活的空间

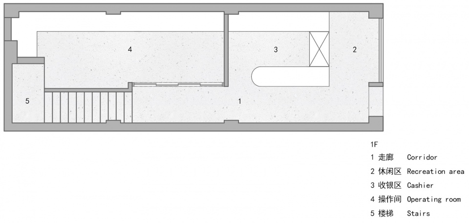
▼ 一层平面图

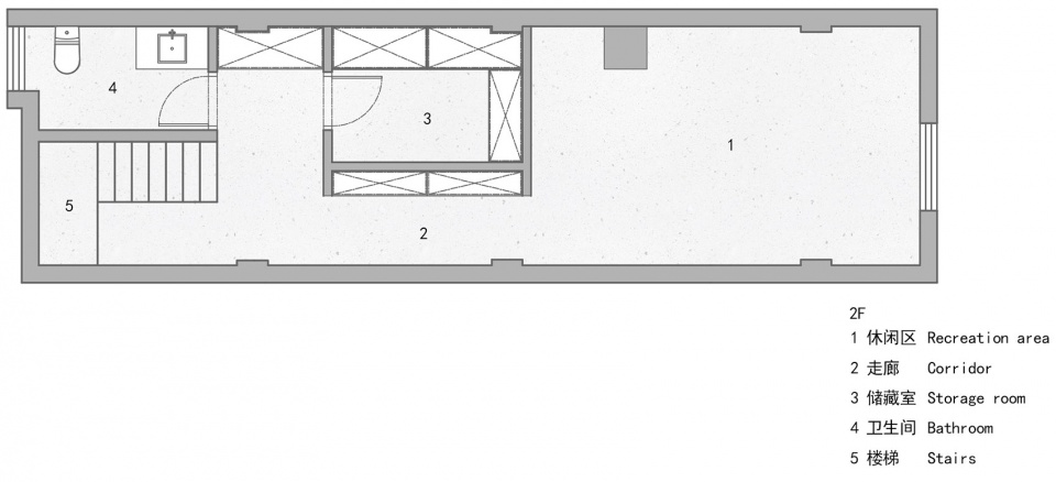
▼ 二层平面图

项目名称:And Sugar
项目地点:无锡江阴市暨阳路218号
主创设计:李波
空间摄影:ingallery
好设计网 www.haoooo.cn 欢迎投稿:infohaoooo@163.com
好设计网 www.haoooo.cn欢迎投稿:infohaoooo@163.com
