越南DT私宅,会呼吸的热带住宅
DT私宅是一个5x20米大小见方的小屋,这一住宅类型在越南当地相当常见。项目灵感围绕热带住宅的设计要求展开,即空间形态和构筑材料必须要能够耐受越南中部城市岘港(Danang city)的严酷气候。



在正式开始这个项目的设计之前,建筑师提出的设计概念为:于一间大屋子内嵌套一个小房子。这也就意味着,私宅的大外廓可以完全覆盖并保护内部的小空间。此外,这两个大小空间之间的连接则是依靠楼梯实现的。



越南城镇中的住宅都有着几个共同的问题:基地形状普遍呈狭长型,并且彼此之间往往紧挨在一起,因而室内难免会缺少充足的通风与光照。而在这三块短板之中,通风与光照的缺失是其中最亟待解决的问题。因此,建筑师在这个项目中设计了一个广阔的前院,同时还配有联通上下层的两架楼梯,以在私宅内部构建一个开敞空间,用以解决基地本身在通风与光照上的局限。这个内嵌的前院,就有如小屋的呼吸肺,使得内部的空气,一直都保持一个流动的状态。



同时,绿植树木也是这间小屋至关重要的一部分。它们可以在狭小局促的空间内营造舒适清新之感,因而也被认为是底层空间的一个亮点。此外,私宅中的树木还被认为是家庭成员间的一个关系纽带:身处上下层的家人,不光可以毫无遮挡地看到对方,同时还可以在这个开放的空间里亲切交谈。室内绿植营造的自然气息,结合当地原生态的环保材料,于室内营造了一个宜人的温度和中性的色调,从而保证了住户居住于此的舒适体验。







这间私宅是为一户小型家庭而设计的。业主在项目开始前就与建筑师进行了多次交谈,并提出了他们的期盼:他们希望落成的住宅是一间充满活力、亲情和归属感的小屋。而这一期盼,也在私宅施工完成后得到了业主的肯定。他们称赞这间私宅,唤起了他们彼此的儿时回忆,甚至内心深处的灵魂。同时,建筑师也希望,这份快乐可以于这间小屋内,伴随居住于此的家庭,继续传递下去。



▲ 模型

▲ 一层平面图

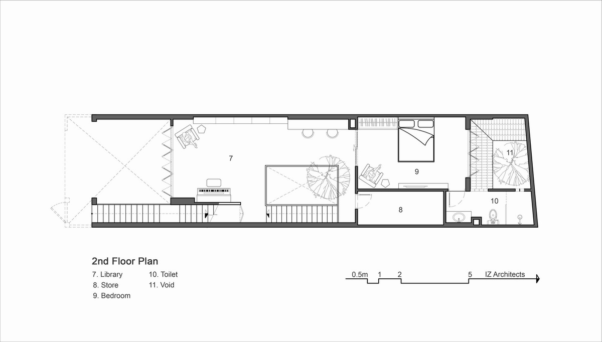
▲ 二层平面图

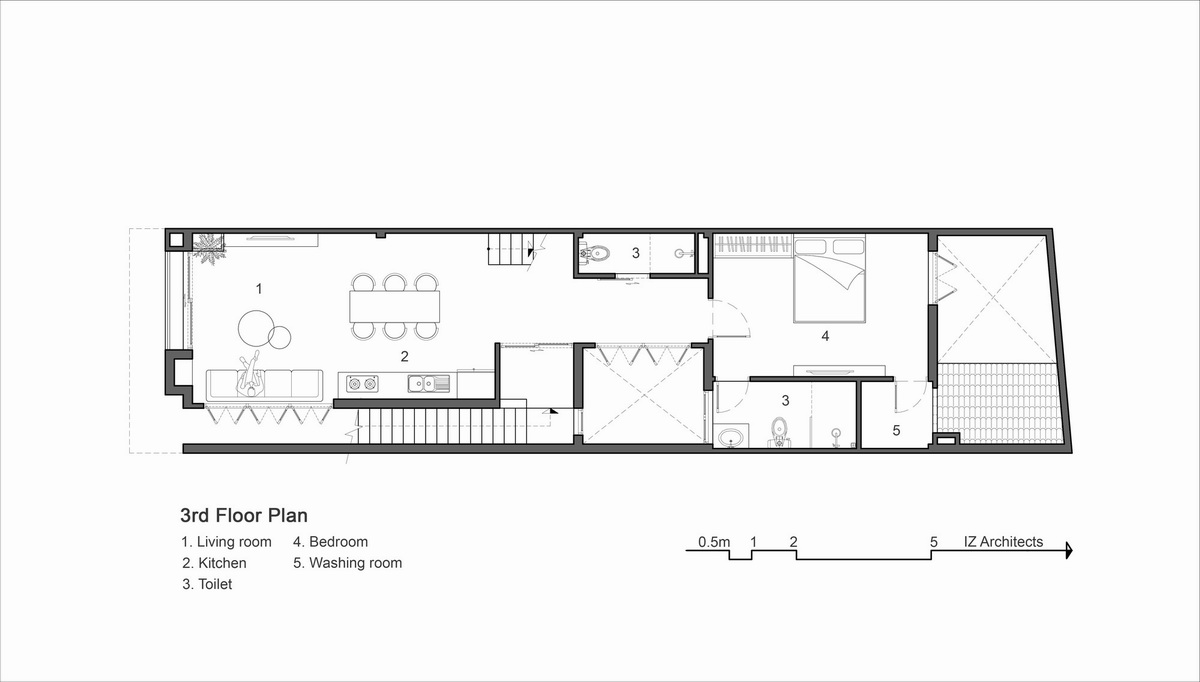
▲ 三层平面图

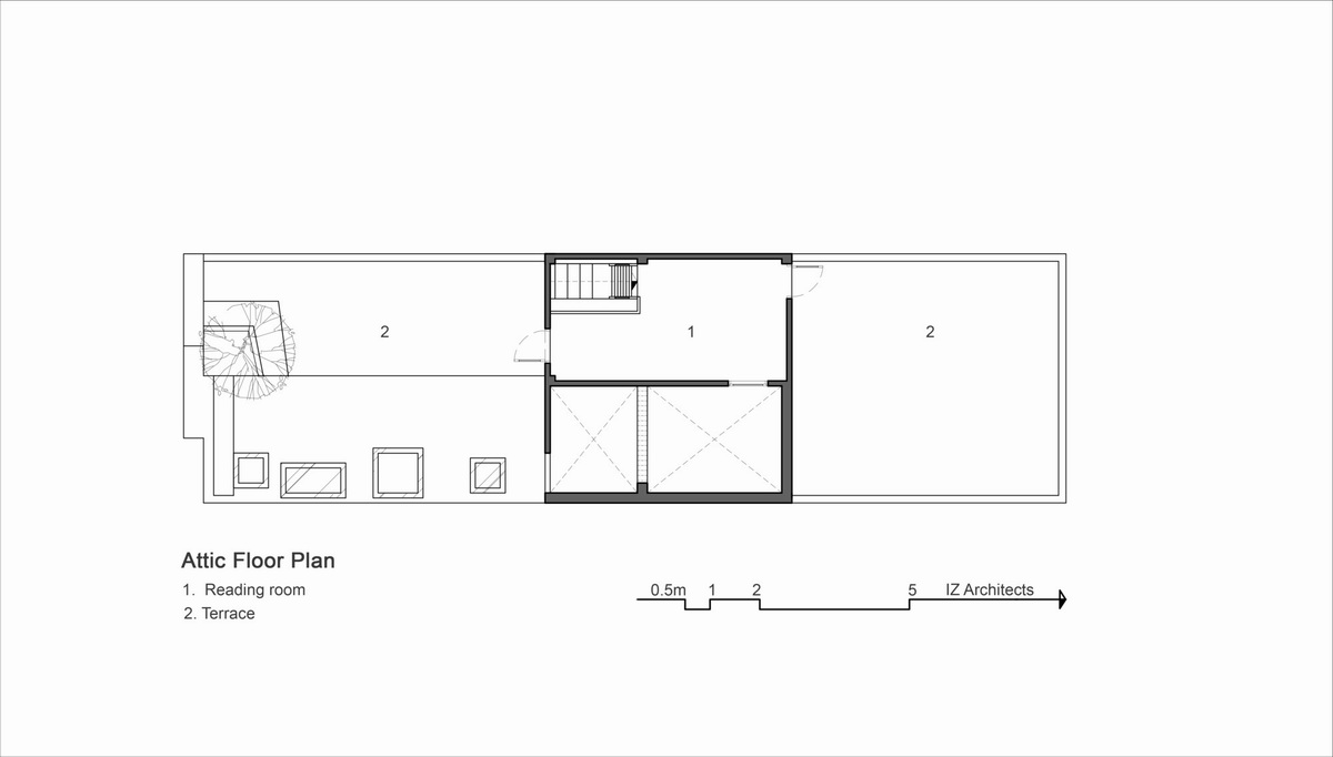
▲ 阁楼平面图

▲ 屋顶平面图

▲ 立面图

▲ 立面图
类别:独立住宅
建筑面积:115.0 m2
地址:越南
建筑事务所:IZ Architects
主创建筑师:Le Vinh, Nguyen Cuong
摄影师:Quang Dam
承包商:IZ Architects, PAM Interior
项目年份:2019
好设计网 www.haoooo.cn 欢迎投稿:infohaoooo@163.com
好设计网 www.haoooo.cn欢迎投稿:infohaoooo@163.com
