伦敦Stratford酒店,营造一个奢华的垂直社区
伦敦开发商Manhattan Loft Corporation (MLC) 在它的新项目中重新对高层住宅生活进行了构想并尝试将伦敦丰富多样的住宅类别放进一座垂直建筑中。这个项目为伦敦提供了一种新的住宅范例,它的单元设计无论从面积还是体积而言都十分宽敞。简介中将主要介绍人们在高层住宅中的社交生活。这里248间公寓共有13种不同的户型,结合了开阔的阁楼式公寓和精品单层住宅,以及顶层的一间三卧室套房。

MLC的创始人兼首席执行官Harry Handelsman对斯特拉特福 (Stratford) 将要对伦敦带来的影响感到激动:“想象一下一间完美的21世纪酒店,你看到了什么?无可挑剔的设施,精准的服务和优越的地理位置都至关重要。不过它还需要像The Carlyle, The Chelsea这些著名曼哈顿酒店拥有的独到之处。就是一个特殊对待每位客人的俱乐部,聚会场所,酒店,或家。


设计团队面临的挑战就是在一座垂直建筑中创造一个现代社区——一个反应并支持社会多样性,以及鼓励建立轻松对话和新关系的地方。设计团队里包括了建筑师和工程师,他们一起塑造了大楼颇有创意的钢筋混凝土形态,为住户社交创造了一个令人印象深刻的充满绿意的平台,并且从内到外尽可能融入更宽广的视野和更多的自然光线。

酒店部分占据了底下六层,第7层是建筑的第一个屋顶花园。另外两个令人惊艳的屋顶花园分别位于25层和36层。这三个花园就像是垂直叠放的建筑中的几处镂空。其中每个花园都有自己的特色,从穿过花丛的静谧小路到配备了烧烤区和酒吧的派对区。大楼的社会属性从来者踏入大厅的那一刻起便形成了。三层高的大堂由酒店住客和公寓居民共享。支撑着花园的双悬梁结构在进行这种表达的同时,也使建筑在天际线中成为一个突出的存在。这些都标志着伦敦的创意中心正在移向东边。







对钢筋和混凝土的独到使用令大楼成为了一座拥有三个独特花园的建筑。它拥有一个不同寻常的塔楼结构。悬臂式后张混凝土支撑了大部分的楼层还有分别位于10层和28层的镶钢桁架结构。

通过双层高空间,酒店式礼宾服务以及会员俱乐部,斯特拉特福为住客营造了一个奢华的垂直社区。斯特拉特福还承诺把世界级的酒店服务,艺术和建筑结合在一起,以鼓动新一代的长租和短租客人来东边安家。作为现代式长租酒店,它希望能带领行业走进黄金时代。








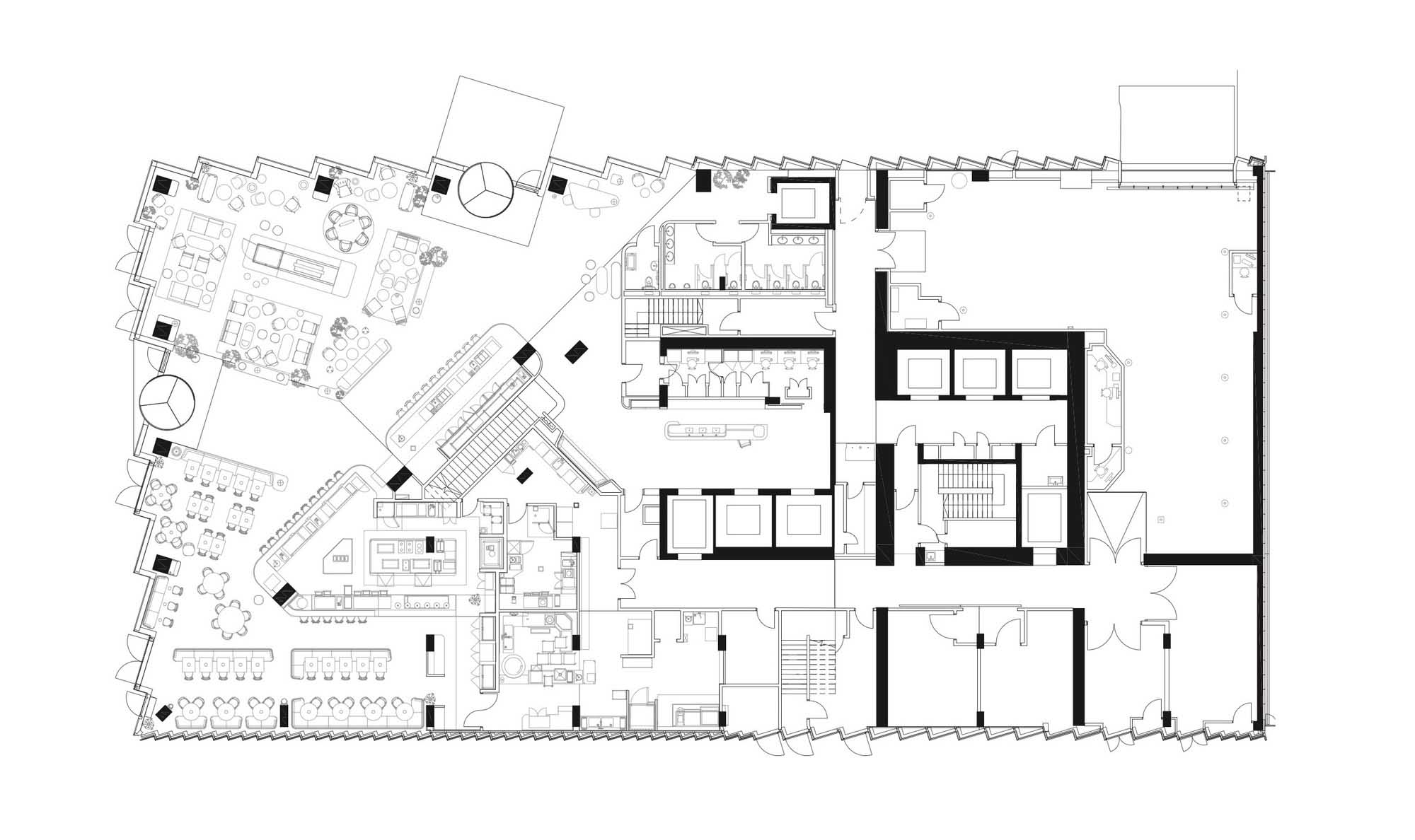
▲ 一层平面图

▲ 标准层平面图

▲ 立面图

▲ 剖面图
建筑事务所:Skidmore, Owings & Merrill
类别:公寓
建筑面积:39299.0 m2
地址:Queen Elizabeth Olympic Park,伦敦,英国
主创建筑师:SOM
开发商:Harry Hendeslman - Manhattan Loft Corporation
摄影师:Alex Upton, courtesy MLC, Ed Reeve, courtesy MLC, Luke Hayes, courtesy MLC, Rory Gardiner, courtesy MLC, Oliver Douglas, courtesy MLC, SOM, Jake Curtis, courtesy MLC, Rich Stapleton, courtesy
MLC室内设计师(顶层套房):Alex Gorlin
MLC室内设计师(顶层套房厨房):Seamless
MLC室内设计师(酒店):Space Copenhagen
MLC室内设计师(转换层):LSI Architects
花园景观师:Randle Siddeley
外部施工方:Bouygues UK
施工方:The Stratford Lofts: Bouygues UK, The Stratford: ISG
灯光设计师:Light IQ, Paul Nulty
项目年份:2019
好设计网 www.haoooo.cn 欢迎投稿:infohaoooo@163.com
好设计网 www.haoooo.cn欢迎投稿:infohaoooo@163.com
