台北“卢宅”,简单舒适才是真
两册空间设计 / 中国 台北
2019-08-12
屋主是一对退休的夫妇,对生活轮廓的描绘相当清楚。简单的饮食习惯,使得他们并不需要正规的餐桌、椅,只要有个简单的平台或吧台桌可以摆放餐具提供用餐空间。因此,我们将吧台的规划与流理台结合,让备餐与用餐的人有对话的空间,也可以在用餐时享有户外的景致。

客厅也没有传统的沙发,只有躺椅及书桌、椅,然而这样的家具配置都来自于屋主对生活有清楚的描述。屋主曾说“设计师,我们不需要沙发,但我们需要躺椅,这样看电视看到睡著才好躺”;书桌则提供平常阅读的需求。房子本身的条件很特别,坐北朝南又位处高楼层,故采光通风良好之外,高楼层带来绝佳的视野,坐在客厅的躺椅上可远眺台北101,坐在吧台前用餐则可以欣赏到幽幽基隆河。





▼ 餐厅


▼ 卧室




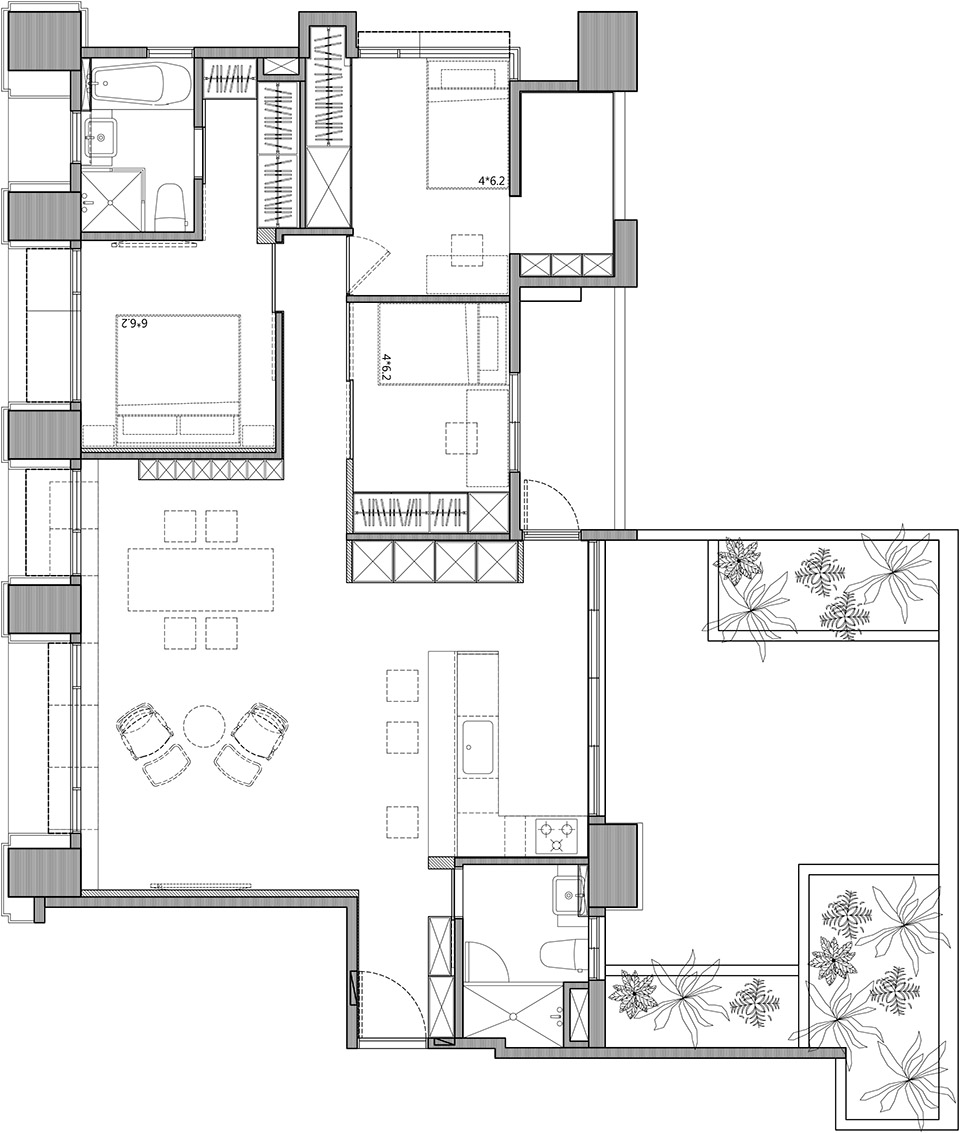
▲ 平面图
空间名称:台北卢宅
空间类型:住宅空间、平层住宅、轻工业风住宅
占地面积:119平方米
空间地址:台北
设计公司:两册空间设计
空间主材:木材、金属、混凝土涂料、自流平、钢板、乳胶漆、玻璃
空间摄影:moooten studio
好设计网 www.haoooo.cn 欢迎投稿:infohaoooo@163.com
好设计网 www.haoooo.cn欢迎投稿:infohaoooo@163.com
