浙江嘉兴海盐晕染叠宅,清雅闲适的居住空间

序态设计 / 中国 嘉兴
2019-08-26

空间、人、流动性,共同组合成空间的生命气息。将使用者自身的气息刻印于空间中,空间与居住者彼此互动关联,共生共长。

此项目为临海改造住宅项目,位于浙江嘉兴海盐,改造后的空间是需要满足一家四口清雅闲适的居住生活。本身是深受江南传统文化熏陶成长的家庭。男主人是一位企业家,需要有独立的办公空间,女主人需要长时间在家照顾新添加的一位小成员之余,生活上也喜欢毛笔字和水墨画,空闲之余偏爱种植花草,希望明亮开阔的视野,考虑到家中的儿女,需考虑其成长空间及学习空间的功能需求。

2.jpg

3.jpg

空间整体上,客户希望能满足小朋友成长生活之余,运用传统江南元素表达空间。东方文化中,山水作为理念的首选,它既有具象的依托,也包含虚无境界,贯穿于哲学,也流于市井。在抽象层次上我们尝试审视新的一种表达方式。颜色上抽离文人水墨画作的层次灰,宗教院墙的中央土黄色,空间上借鉴山水叠晕穿插的手法具象表达。

把原有的整体阳台分割为入口玄关和室外活动景观,采用定制青砖和发光青砖结合的光影交错感,增加空间的流动性和层次性。

4.jpg

5.jpg

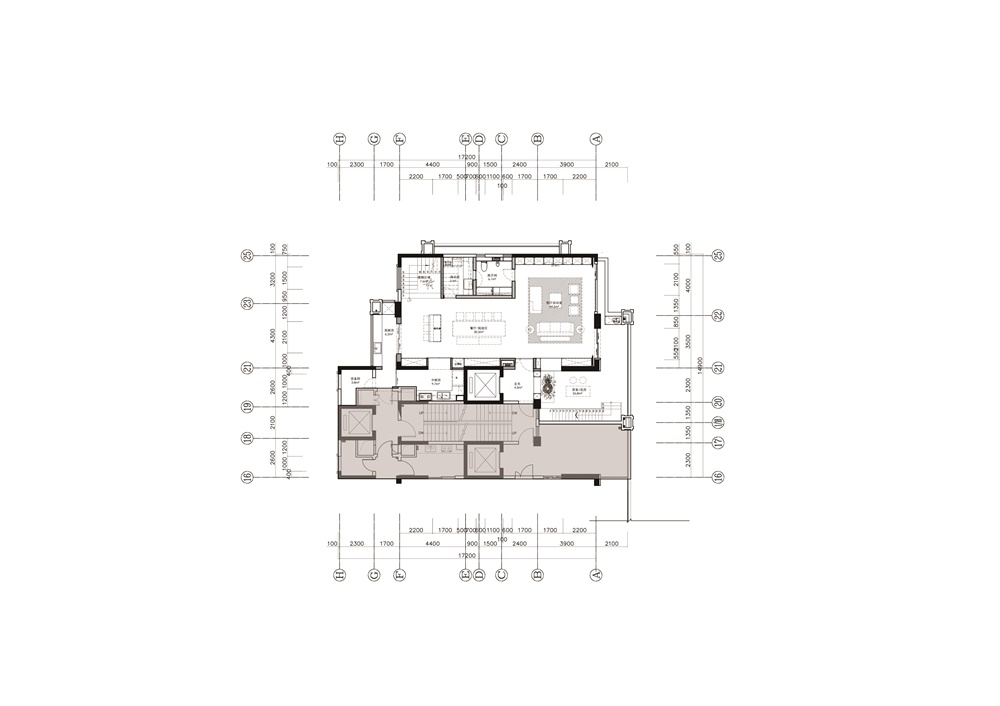
一层我们调整为家庭公共活动区域,为了保证空间和视野的流动性,移动中间的原始楼梯位置,让厨房,餐厅与客厅活动区最大化串联起来。楼梯,洗衣房,卫生间附属空间串联。增大家庭公共活动区域,最大化的保障室内采光和空气流通。

6.jpg

7.jpg

8.jpg

9.jpg

10.jpg

11.jpg

12.jpg

13.jpg

14.jpg

15.jpg

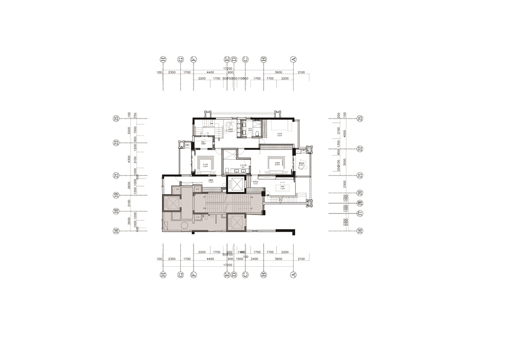
二层移动后的楼梯平台形成走道和开放式的阅读活动区域,满足未来两个小朋友成长的互动性。一层阳台新增挑空书房空间,在满足男主人独立书房的同时,形成空间的错层性。底部半开放区域为开敞性茶室。

16.jpg

17.jpg

18.jpg

19.jpg

20.jpg

在抽象到具象之间的过程,我们一直希望转换和借鉴的是山水中至刚至柔,忽高忽低,或动或静。转换在人与人,人与环境是晓分寸,懂张弛,明呼吸。人造环境/自然/人彼此相互交融,相互影响。

阳光洒落,在袅袅茶香中,萦绕着孩子们的嬉闹声,母亲的小声责备,以及父亲的维护。我们希望通过空间来记录生活的情绪,在细微中发现生活的美好,赋予生活的反馈。

21.jpg

22.jpg

23.jpg

24.jpg

25.jpg

26.jpg

27.jpg

28.jpg

29.jpg

30.jpg

▲ 一层分析图

31.jpg

▲ 1层平面图

32.jpg

▲ 二层分析图

33.jpg

▲ 二层平面图

设计内容:室内+建筑

规模面积:300平米,景观50平米

设计单位:序态设计研究室(上海)

设计团队:杨添堡,王鹏一,郑乔文,Diamond,罗荆倩

室内及结构施工: 上海睦博装饰设计工程有限公司

设计时间:2016.03—2016.06

施工时间:2017.07—2018.03

照明供应及顾问:大晔照明

家具:上下,MINOTTI

材料:青砖,发光青砖,芬兰涂料漆,港基汇瓷砖,硬包布艺,胡桃木皮,黄铜

摄影师:小云

好设计网  www.haoooo.cn      欢迎投稿:infohaoooo@163.com

好设计网  www.haoooo.cn
欢迎投稿:infohaoooo@163.com