南方电网生产科研综合基地,建筑和自然的交融
电力运营商南方电网生产科研综合基地坐落在一片树木繁茂的山丘之间。园区由gmp·冯·格康,玛格及合伙人建筑师事务所设计,实现了建筑和自然的交融。建筑群由单体建筑与错落的中庭构成,散布其间的小型绿化广场、光庭和栈桥连接了各个实体空间,园区主楼和会议中心大楼获得了LEED可持续性设计认证。

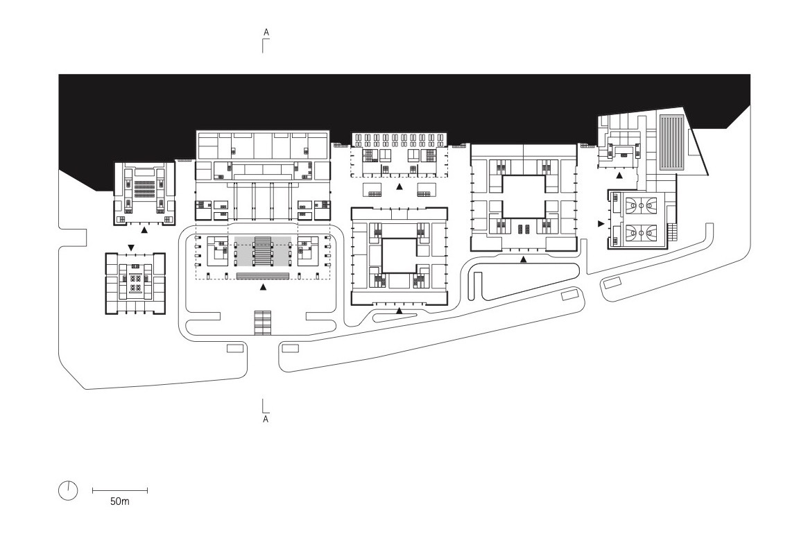
主楼和会议中心大楼获得了LEED-NC金级认证,同时整个项目还获得了广州2018年优秀工程设计一等奖。基地位于黄埔区广州科学城内,八座建筑散布在尖塔山脚下狭长的地块之上,每座建筑均由正方形基本形体发展而来。

▲ 总平面图
建筑群由一个坚实的基座、通透的连接部分和一座仿佛悬浮其上的体块组成。浅色横向花岗岩立柱刻画了建筑立面的整体形象,形成了建筑群造型语言的主题,因其具有一定的进深还起到了为室内空间遮阳的作用。煤黑色竖向框架与浅色花岗岩产生对比,幕墙框架内还集成安装了遮阳窗帘,构成了一个散热建筑外表皮。建筑室内空间的设计也选择了相似的材料元素,园区、单体建筑不同功能区域均保持了一致的设计风格。

园区的主入口位于南部的科翔路,一座大型的室外台阶和坡道直通主楼。主楼略微向地块内退进形成一座宽大的前广场。广场上的水池将人们引导至建筑的内庭,其中一半部分位于雨蓬之下,构成一座入口前厅。会议中心位于西侧香山路入口,其内设有600人会议中心以及展览活动空间。其对面的建筑将作为企业档案馆使用。主楼以东的另两栋建筑内设办公室、研发和电力调度控制中心,它们与斜坡上的食堂建筑一起构成了园区的中心区域,若干下沉的阳光中庭令这里的空间别具吸引力。园区东侧为体育设施以及员工宿舍,也可为访客提供住宿。







▲ 一层平面图

▲ 三层平面图

▲ 剖面图
类别:办公设施
建筑面积:356670.0 平方米
地址:广东省,中国
建筑事务所:von Gerkan, Marg and Partners Architects (gmp)
主创建筑师:Meinhard von Gerkan and Stephan Schütz, Nicolas Pomränke
竞赛阶段项目负责人:Simon Schetter
竞赛阶段设计团队:He Xiao Hua, Xu Ji, Helene Käschel, Qin Wei ,Thilo Zehme, Zhang Xuan
实施阶段项目负责人:Jens Förster
实施阶段设计团队:Jan Peter Deml, Gai Xudong, Bernd Gotthard, He Xiao Hua, Helene Käschel, Lian Kian, Andreas Maue, Pan Xin, Katja Pötzsch, Simon Schetter, Kristin Schoyerer, Qin Wei, Xu Ji, Ye Keke, Thilo Zehme
中方合作设计单位:广州市设计院
景观设计:Rehwaldt Landscape Architects
结构设计:schlaich bergermann and partners
能源设计:Happold Ingenieurbüro GmbH
照明设计:Schlotfeld Lichtdesign
摄影师:Christian Gahl
业主:中国南方电网有限责任公司
项目年份:2019
好设计网 www.haoooo.cn 欢迎投稿:infohaoooo@163.com
好设计网 www.haoooo.cn欢迎投稿:infohaoooo@163.com
