福州阳光城保利源溪里山,回归内心的优雅和诗意
“自然”是最舒适的一种生活状态,让人远离城市的浮华与纷扰,回归内心的优雅和诗意。
源溪里山地处福州北郊偏远地段。我们通过设计打破人们对郊区的想象,向人们展示田园生活的惬意,引领都市回归东方诗意的栖居,为源溪里山定义了诗意、度假的地产品牌新形象。
▼ 入口接待台

自然景观,是城市最奢侈的资源,却是源溪里山得天独厚的优势。如何利用郊区的天然优势,将建筑融入自然山水,让园林室内化,是这次设计探索的重点。

重意轻形
“重意轻形”,东方的写意美学。山石、水滴,是山水的另一种表现形式,设计将“通感”的修辞手法用于空间,从视觉、听觉到触觉,演绎空间的山水人文意蕴。
坚硬的石头与轻柔的水滴在墙面碰撞,演绎水滴石穿,辩证包容的东方生活哲学。为了寻找天然璞雅的块石,设计师走遍福州上百家石材厂。
▼ 水纹元素

枯山水,浸透现代东方禅意的宁静与自然。

▼ 入口走廊

去繁就简
去繁就简,是空间设计的重要原则。舍弃赘饰,摒弃华而不实的材料,通过细节设计,构筑符合当代审美的宜居空间。



现代简约的点、线、面设计组合,从大笔触的轮廓到家具、灯饰的细节处理,流露空间的人文关怀。


项目之初沿用传统正式的洽谈桌,过于严肃刻板难以体现空间的自然舒适,后经双方反复沟通磨合,选用天然麻质沙发、坐榻和原木茶几打造休闲客厅化的洽谈室,打破传统售楼处紧张沉重的商业设计,让到访和洽谈变得自由惬意。


大落地玻璃幕墙像铺展开的山水画卷,将自然风光引入室内,传递自然的悠闲惬爽,让人们从城市的焦虑中解放。



软硬装配合完成的墙灯是空间的一个亮点,在设计上化功能为艺术,利用线与面构成的艺术灯具做空间点缀,让生活多点意趣。

唯美诗意
诗意,是一种发现,发现生活中的美好,回归内心的优雅。空间设计 ,体现的不仅是设计语言艺术,还有当代人文需求。
木饰面和原石打磨设计的楼梯,呈现蜿蜒流动的美感与温润的触感,人文温度濡润生活。

沙盘区的格栅设计让天花呈现建筑的立体感,垂挂的灯饰像绽放在福州老巷的油纸伞,演绎自然浪漫的人文空间。








光影、禅茶,打造沉浸式空间体验,延续诗意的空间生活。




石艺、粗陶、花艺,让生活多一点人文艺术的浪漫,少一丝匠气和浮躁。

设计如生活一般,自然简单,既能安享眼下的热闹,又不丢失内心的优雅和诗意。

“源溪里山”在城市喧嚣之外,洗尽铅华,让已消逝的诗意在现代空间中重新生长,最终实现源溪里山离尘不离城的东方诗意生活方式,为阳光城“里山”新产品系定义了人文、诗意、度假的品牌内涵。
▼ 效果图




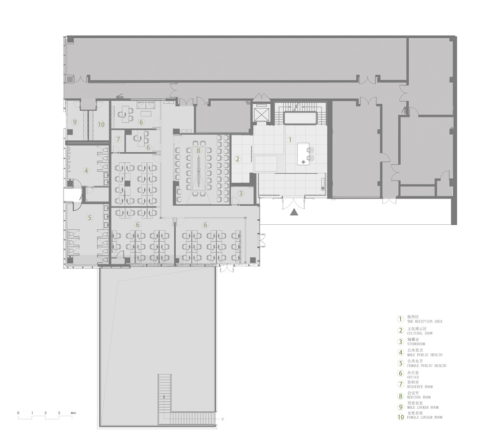
▲ 一层平面图

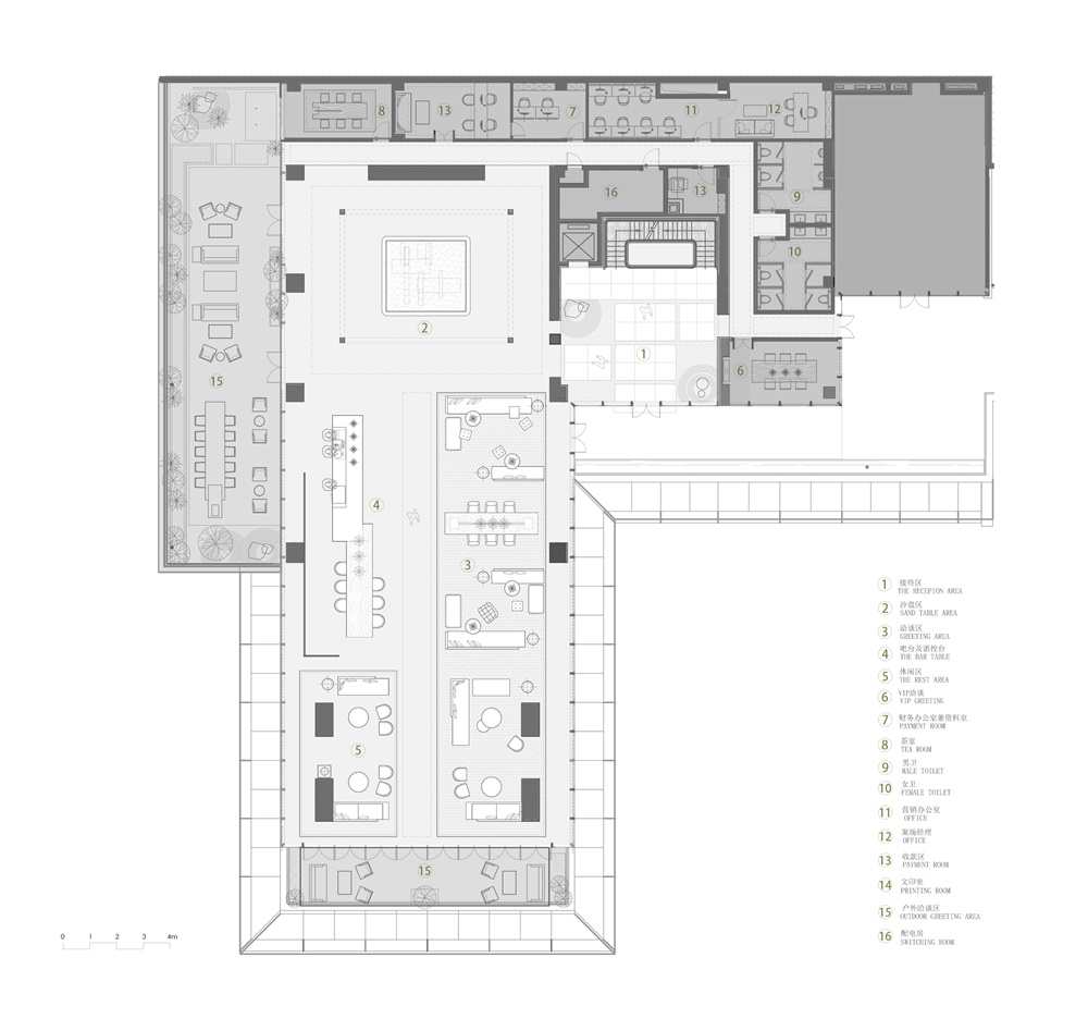
▲ 二层平面图

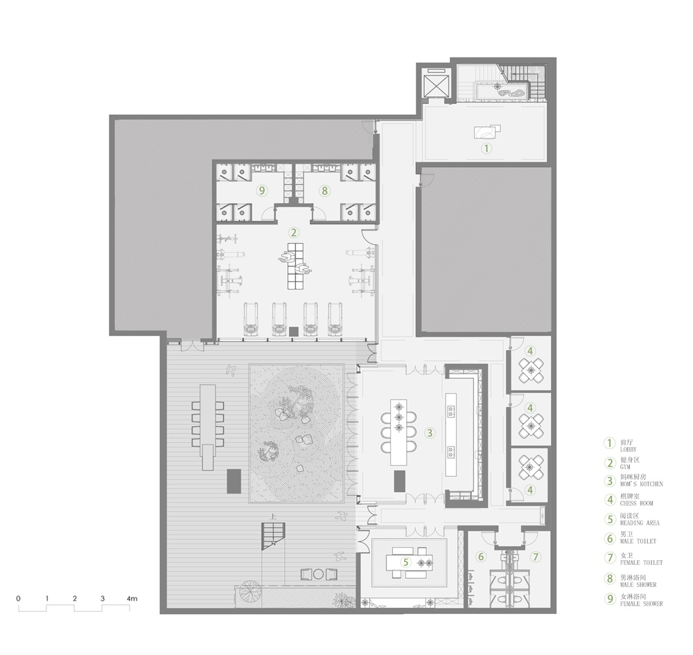
▲ 负一层平面图
项目名称:阳光城·保利源溪里山
项目类型:售楼中心
项目面积:1500m²
项目地点:福州
硬软装设计:HCD IMPRESS柏年印象
空间摄影:张骑麟
甲方单位:阳光城集团福州分公司
竣工时间:2018年10月15日
好设计网 www.haoooo.cn 欢迎投稿:infohaoooo@163.com
好设计网 www.haoooo.cn欢迎投稿:infohaoooo@163.com
