LuxMare 私宅,原生朴素的居所

Mário Martins Atelier / 葡萄牙 拉各斯
2019-10-08

“Lux mare”意为“一缕来自大海的光”。这栋私宅之所以获此称呼,得益于其所处于的位置和视野,可以望见海洋尽头所反射的那缕光照。

1.jpg

2.jpg

3.jpg

私宅的周边,都是一些建于1970年代并带有花园的独立别墅。项目基地共包含两片巨大的场地,原有的二层住宅呈现出年久失修的破败景致,甚至一旁还有一个未完成的搁置构筑物,显得颇为别扭。基于这一情形,建筑师决定根据基地所在地的空间属性,重新对私宅进行设计建造。

新建的私宅为两个独立的体块,但彼此呼应,互为补充。建筑师将原有建筑的轮廓运用于两个体块的外形设计上。同时,互为一体的设计,或暗喻两个人之间的融合,或意在通过建筑去表达爱意。建筑柔和的曲线外形,在表达两个体块相融的同时,也强调了各自的独立属性。

4.jpg

5.jpg

位于低处且稍靠前的体块,名为 Casa Mare。建筑师将其置于花园之中,使之被植株环绕。而位于其后的另一个体块,则名为 Casa Lux,以其所处的绝佳位置,而享有壮丽的景观视野。

6.jpg

7.jpg

8.jpg

9.jpg

10.jpg

11.jpg

12.jpg

13.jpg

私宅的两个体块,完全依偎于现有地形中,丝毫不显张扬。而私宅唯一引人注目的一点,则是其临海的水平立面,因反射大海的光照而显得格外闪亮瞩目。同时,这个临海立面,还可以为住户提供各个不同的景观视野,包括环绕私宅的绿植、陡峭的悬崖、开阔的洋面和湛蓝的天空。

14.jpg

建筑师还特别在私宅的中庭,利用木材,设计了一个典型的波浪形立面,旨在致敬上世纪的著名建筑师阿尔瓦尔·阿尔托和他所属的北欧设计风格,并同时回应业主的思乡情愫。此外,这栋私宅还是欧洲南部粗野建筑风格和北部优雅设计文化间的一个融合,从而显得原生朴素而又引人注目。

15.jpg

16.jpg

17.jpg

18.jpg

19.jpg

20.jpg

21.jpg

22.jpg

总的来说,这栋私宅简洁的外形轮廓线,搭配其规整匀质的白色石膏立面,结合其对各种元素的平衡和设计,可谓是涵盖了方方面面,堪称建筑设计的一大基准。

23.jpg

24.jpg

25.jpg

▼ 室内

26.jpg

27.jpg

28.jpg

29.jpg

30.jpg

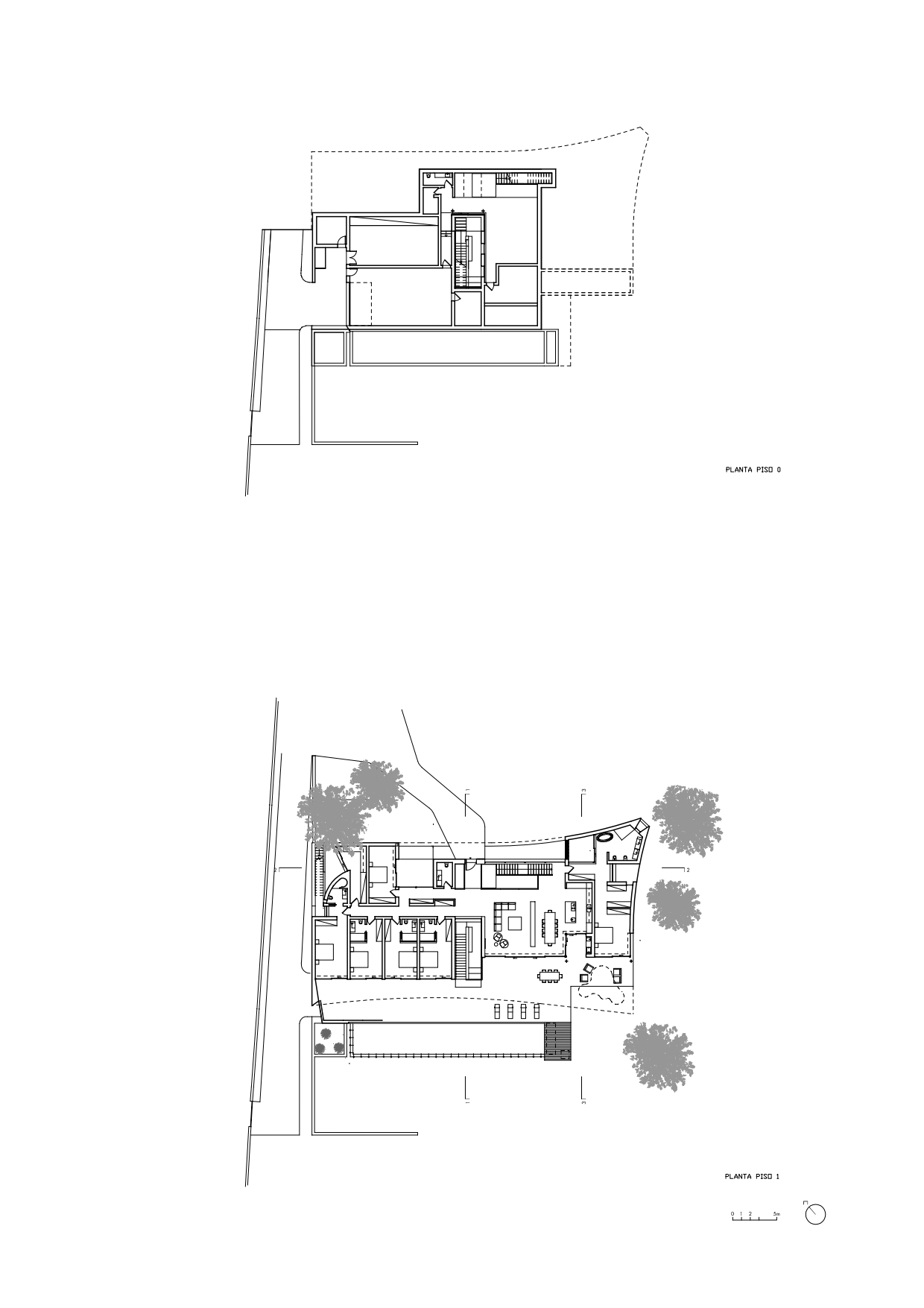
▲ 平面图

31.jpg

▲ 立面图

32.jpg

▲ 剖面图

33.jpg

▲ 平面图

34.jpg

▲ 立面图

35.jpg

▲ 剖面图

36.jpg

▲ 轴测图

37.jpg

▲ 实体模

38.jpg

▲ 项目手绘

39.jpg

▲ 项目手绘

建筑事务所:Mário Martins Atelier

项目类别:独立住宅

项目地址:Lagos, 葡萄牙

项目合作:Nuno Colaço, Kirsti Oygarden, Rui Duarte, Sónia Fialho, Mariana Franco

项目施工:Lagopórtico, Lda

厂家:Lagopórtico, Cristalmax, Reynaers Aluminium, Barbot, Astralpool, OHM, DAIKIN, J.Dias, Revestimento Paredes, Valadares, Technoloje, Roupeiros, Revestimento Pavimentos, EFM, Portas, Grohe

空间摄影:Fernando Guerra | FG+SG

项目年份:2019年

好设计网  www.haoooo.cn      欢迎投稿:infohaoooo@163.com

好设计网  www.haoooo.cn
欢迎投稿:infohaoooo@163.com