“河”之工作室,轻盈优雅的“A”字形曲屋顶
Alexis Dornier / 印度尼西亚 孟威
2020-02-12
作为最初的三个单元组合中的其中一个,river studio是一座带有一间卧室的最小化的房子,作为对围绕场地形状而产生的一些限制因素和机遇的回应。由于极其狭窄的自然特性,场地需要容纳通向主要房屋的通道——因此,我们通过将小型工作室、卧室组合悬挑于车道上方来营造空间,由此创造了楼上空间。


在宽度小于8米的空间里进行设计,我们将起居室做了稍微的旋转,以获得更长的有利位置,并设置了一个小型游泳池和花园。





在正式的楼层上,我们在阁楼顶部采用了A字形屋顶,使得悬浮于车道上方的体量形成非典型的屋顶轮廓,以遮蔽下方空间免受阳光暴晒并创造私密性。通过采用钢、木和混凝土材料,我们以使用的最佳和舒适为目标。





房子柔和的色调与周围的绿色、茶色相呼应,精心挑选的艺术品使该地方成为一个功能非常适合的空间。



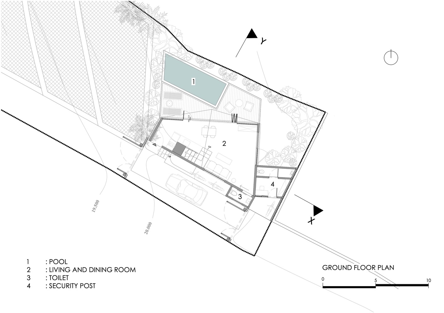
▲ 一层平面图

▲ 上层平面图

▲ 屋顶平面图

▲ 南立面图

▲ 北立面图

▲ 东立面图

▲ 西立面图

▲ 剖面图X-X

▲ 剖面图Y-Y
项目地点:孟威,印度尼西亚
项目面积:100.0 m²
主创建筑师:Alexis Dornier
建筑摄影:KIE
项目年份:2019
好设计网 www.haoooo.cn 欢迎投稿:infohaoooo@163.com
好设计网 www.haoooo.cn欢迎投稿:infohaoooo@163.com
