莫比乌斯MOBIUS摄影基地,视觉及触觉的全新体验
杭州山地土壤室内设计有限公司 / 中国 杭州
2020-02-03
莫比乌斯带有着循环往复的几何特征,蕴含着永恒、无限的意义。传统的三维世界里,所有的维度都是直线式的,但如果将旋转视为一种纬度,则相对容易对莫比乌斯带进行解释。




▲ 外立面






▲ 户外庭院
此项目地址位于杭州滨江孔家里文创园内。整体建筑是室内面积约为570平方,户外景观约为130平方的一栋村民自建房。房屋为砖混结构。考虑到承重因素,我们在规划整体平面考虑保留了原先的结构墙体再加以饰面改造。




▲ 咖啡空间
整体空间材质选择,我们在门窗造型上大面积使用了胡桃木加以金属点缀,将二者看似毫无关系的材质重叠在一起,用木质的柔软属性兼容金属的冰冷外衣,带来视觉以及触觉上的全新体验。墙面的材料我们打破原本平淡的墙面质感,用艺术涂料不规则的肌理感加以视觉冲击,丰富空间视觉。





▲ 大厅及楼梯





▲ 室内空间



▲ 壁炉




▲ 卧室

▲ 厨房

▲ 景观


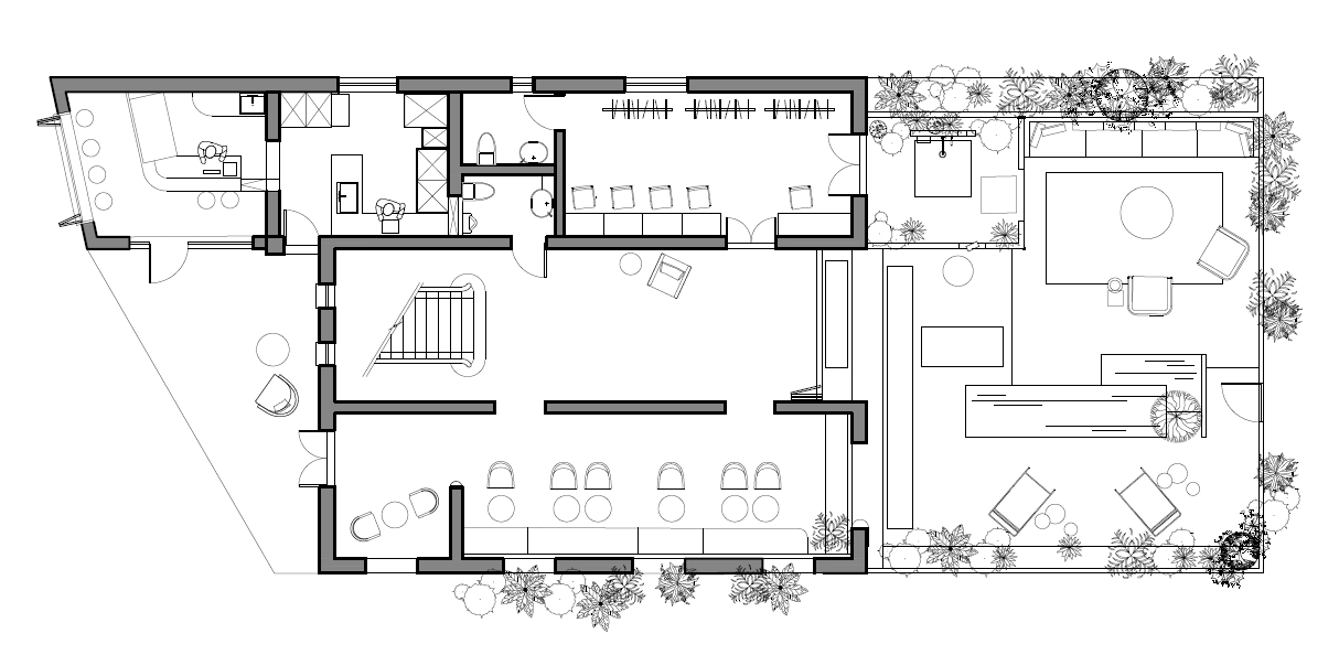
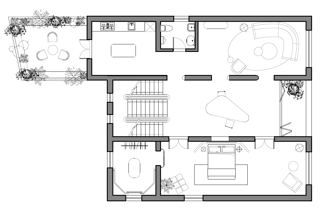
▲ 平面图




▲ 立面图
项目名称:MOBIUS(莫比乌斯)摄影基地
建筑面积:570㎡+130㎡
项目地址:浙江省杭州市滨江区
设计单位:杭州山地土壤室内设计有限公司
主创及设计团队:董甜甜
材料:胡桃木、不锈钢、质感涂料、水磨石
摄影版权:稳摄影
项目设计 & 完成年份:2019年8月-2019年12月
好设计网 www.haoooo.cn 欢迎投稿:infohaoooo@163.com
好设计网 www.haoooo.cn欢迎投稿:infohaoooo@163.com
